2013.10.15 神奈川県鎌倉市
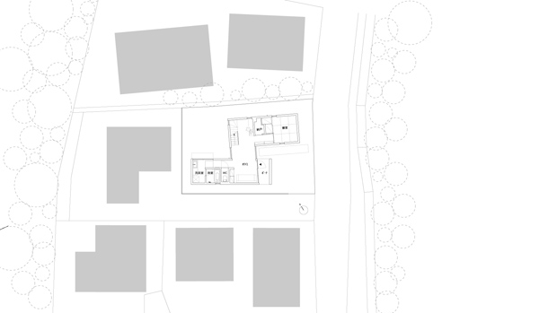
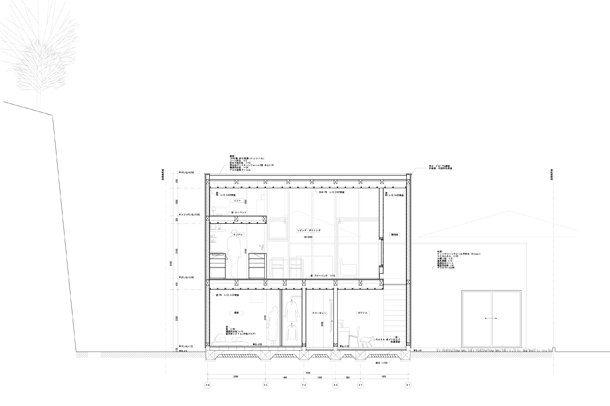
鎌倉駅から江ノ電で住宅地の中を5分ほど揺られ、木々に覆われた小さなトンネルを抜けると、山に囲まれた緑の多い場所に出る。駅を降りてしばらくは平坦な道が続き、傾斜にそって切り開かれた谷のような急な坂道を上っていくと敷地が見えてくる。前面道路は行き止まりなので交通は殆ど無く、潮の香りと風向きによってかすかに聞こえる波の音が五感を刺激する。そんな場所である。初めて訪れたとき、しっとりとした地面から連続的に繋がる斜面と緑、背伸びをすると見えそうな海に思いを巡らせ、この地形や風景と関わりをもちながら、離れた海ともつながるような建築をつくりたいと考えた。建築の構成は、高さの異なる平面的にほぼ同じ大きさの2つのハコが、角度をもちながらすき間をはさんで配置され、低い屋根によって繋がれている。内部はワンルームのように連続しているが、天井高さや開口の位置と大きさ、空間のプロポーションなどのスケールを、周辺環境との関わりを意識しながら操作することで緩やかに分節されている。低いハコはエントランスから北側の庭へと連続する土間の床をもつ平屋。天井を高くして開口の高さを抑えることで地面を意識する場所になり、北側の庭を介して隣家の紅葉や木々の隙間の先に続く坂道との関係がつくられる。天井を抑えた接続部分を介して繋がれた高いハコは、対照的に背伸びしたようなプロポーションで、地面から切り離された2階の床にフローリングが敷かれている。海側に開けた天井いっぱいの開口を通して、屋根の連なりの先にある海を意識しながら、北側の山の緑も風景として取り込むことができる。2階から連続する低いハコの屋上は更に高い場所で、山の緑に囲まれ空に開けた場所になっている。
※新建築住宅特集2013年07月号より抜粋 この記事にコメントする
※新建築住宅特集2013年07月号より抜粋 この記事にコメントする
設計・監理
川辺直哉建築設計事務所 担当/西岡諒
構造設計
多田脩二構造設計事務所
用途
戸建て住宅
敷地面積
148.78㎡
建築面積
51.07㎡
延床面積
70.55㎡
構造
木造
規模
地上2階
工期
2012.7〜2013.02
施工
泰進建設
































Page Top