2007.2.1 東京都渋谷区
AOI apartment
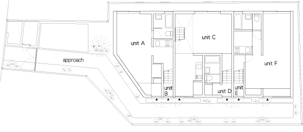
敷地は幹線道路から少し入った旗竿形状で、周囲には住宅が建て込み、すぐそばには首都高速の高架が迫っている。6住戸からなる長屋の外形は諸事情をクリアしながらシンプルな切妻の形態となり、敷地内通路は雁行しながら敷地の奥へと導かれ、道路側からは見通す事のできない小道のような場所をつくっている。
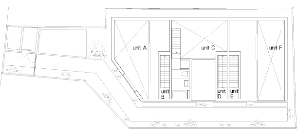
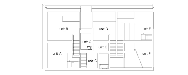
1階は外部のスケールをそのまま取り込んだように天井高が高い。その大きな気積の中に面積を十分に確保したロフトがあり、連続する空間としての広がりと、居室から見通すことのできない住戸の境界を曖昧にするような奥行をつくった。また土間や大きな開口は明るい路地へと繋がり、北側隣地境界に向けた低い開口は、薄暗いわずかな残地をも室内の延長として引き延ばし、床もひとつの地面であることを感じさせる。
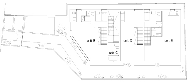
2階は隣家の窓と向き合う高さには開口を設けず広い壁面とし、切妻屋根の形状がそのまま室内に現れて、座って身をかがめた高さから見上げるような高さまで、連続的に立ち上がる大きな天井面をつくっている。屋根を切り欠いた開口からは木漏れ日のような日差しが入り込み、その先に広がる空の様子が垣間見える。
この記事にコメントする
1階は外部のスケールをそのまま取り込んだように天井高が高い。その大きな気積の中に面積を十分に確保したロフトがあり、連続する空間としての広がりと、居室から見通すことのできない住戸の境界を曖昧にするような奥行をつくった。また土間や大きな開口は明るい路地へと繋がり、北側隣地境界に向けた低い開口は、薄暗いわずかな残地をも室内の延長として引き延ばし、床もひとつの地面であることを感じさせる。
2階は隣家の窓と向き合う高さには開口を設けず広い壁面とし、切妻屋根の形状がそのまま室内に現れて、座って身をかがめた高さから見上げるような高さまで、連続的に立ち上がる大きな天井面をつくっている。屋根を切り欠いた開口からは木漏れ日のような日差しが入り込み、その先に広がる空の様子が垣間見える。
この記事にコメントする
設計・監理
川辺直哉建築設計事務所 担当/田岡博之
構造設計
多田脩二構造設計事務所
用途
長屋(6戸)
敷地面積
210.47㎡
建築面積
102.06㎡
延床面積
200.03㎡
構造
木造枠組壁工法
規模
地上2階
工期
2006.08〜2007.02
施工
江中建設
その他
耐火建築物仕様

アプローチ外観

インテリアと共用通路

ハイサイドから光を取り込む

住戸間に設けられた窪みから光と風を取り込む

入居の様子_広い玄関戸間と光の落ちる階段

ロフトを寝室に、高さを使った住戸構成
階段を上がった先の水回り
階段を上がった先の水回り

西側外観

1階平面図

1階ロフト平面図

2階平面図

断面図1

断面図2






























































































Page Top