2020.7.20 東京都武蔵野市吉祥寺東
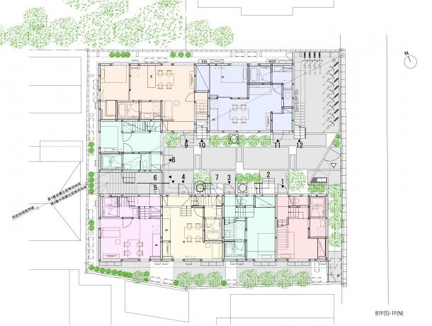
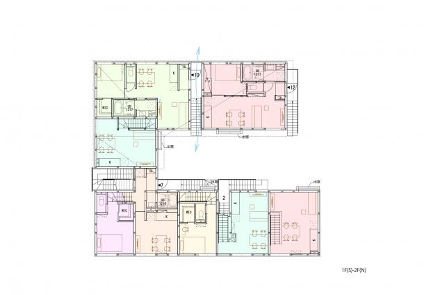
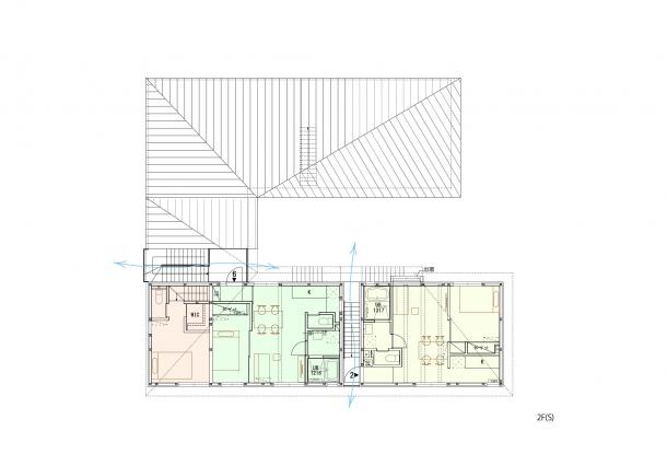
住宅地に計画した12戸の集合住宅。吉祥寺の街は1960年台に計画された都市計画をもとに整備され、現在も継承しながら商業エリアを住宅地が囲うように広がっている。商業エリアは路地、住宅地は街路が特徴的で、敷地も見通しの良い街路に接続している。本計画では前面道路を引き込んだアプローチ空間をつくる事によって、街につながるイメージを持った集合住宅として計画した。用途地域の高さ制限から、北側の建物を2層、南側の建物を半地下のある3層とし高さの違いを生む事で、視線の交錯は抑えながら採光や通風を取り込み、内外空間の多様さへ繋げている。インテリアには構造の梁や柱が見え、最上階では屋根勾配なりの天井のかたちが現れることで、建物全体の設えや構成が各住戸に通じる質を与えつつ、半地下を含めた階による高さの違いと住戸形式が、固有の空間性をつくっている。昨年都内では長屋の通路幅の条例改正が行われたが、規定以上の5m幅を確保する事で単なる敷地内通路から街のスケールを持った、住宅地と共存する長屋像を示すことを試みた。吉祥寺の家という建物名は住戸各々個性のある動線やプラン、住戸環境をひとつながりの勾配屋根と道路を引き込んだアプローチ空間によって、一つの大きな家とする意味合いが込められている。
この記事にコメントする
設計・監理
川辺直哉建築設計事務所 (川辺直哉) + 辻昌志建築設計事務所 (辻昌志、辻啓太)
構造設計
多田脩二構造設計事務所 (多田脩二、深澤大樹、遠藤啓志)
用途
長屋 (賃貸12戸)
敷地面積
391.90㎡
建築面積
207.24㎡
延床面積
505.38㎡
構造
木造 地下部分:鉄筋コンクリート造
規模
地下1階 地上2階
工期
2019年11月竣工
施工
建築:礎コラム
空調・衛生:トーエーシステム
電気:京伸電業
空調・衛生:トーエーシステム
電気:京伸電業
植栽計画
TAKA GREEN FIELDS (深町康志)
























関連Topics

























































































Page Top