2020.7.14 東京都江東区門前仲町
敷地形状と接道条件が特殊であることから、
敷地条件と事業性を、周囲との関わりの中で調停する必要があった。
◆事業性と居住環境を等価に扱うためのレイヤー
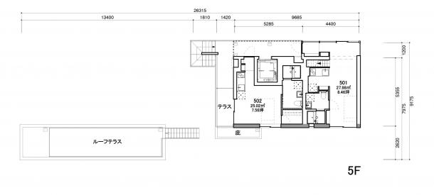
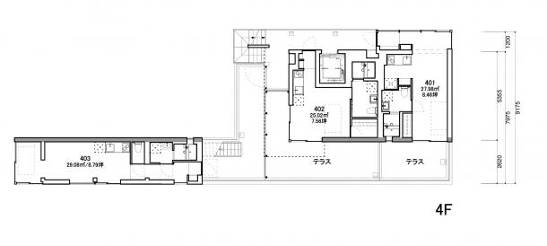
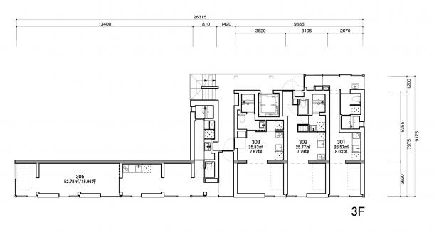
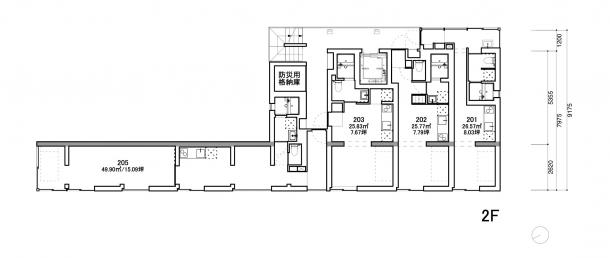
私道からの距離に応じて、奥行き方向にレイヤーを構成し、
前面道路、居住スペース、キッチンや風呂トイレ、エントランスエリア、隣地境界というように、
外部からの距離と明るさをゲージにして、段階的にゾーニングしている。
これにより、事業計画によって住戸区画(面積)が変化しても、
各室の居住環境(外部との関わり)を維持することができた。
◆既存建築に向き合うインタフェースとしての大壁面
長手方向に主構造壁を設け、開口面(ファサード)を構造から切り離し、
道路に面する立面は、サッシ、スパンドレル、ルーバー等を組合せている。
小さな建築が連続する路地(スケール)に対峙させるため、
解像度を分解するよう、軽快に構成した。
◆周囲街区と連続するボリューム
周囲の建築のスケールに対して、4階から上層(4・5階)はボリュームを分離し、
屋上テラスを分散することで、隣地に接する建物と連続する関係をつくっている。 この記事にコメントする
敷地条件と事業性を、周囲との関わりの中で調停する必要があった。
◆事業性と居住環境を等価に扱うためのレイヤー
私道からの距離に応じて、奥行き方向にレイヤーを構成し、
前面道路、居住スペース、キッチンや風呂トイレ、エントランスエリア、隣地境界というように、
外部からの距離と明るさをゲージにして、段階的にゾーニングしている。
これにより、事業計画によって住戸区画(面積)が変化しても、
各室の居住環境(外部との関わり)を維持することができた。
◆既存建築に向き合うインタフェースとしての大壁面
長手方向に主構造壁を設け、開口面(ファサード)を構造から切り離し、
道路に面する立面は、サッシ、スパンドレル、ルーバー等を組合せている。
小さな建築が連続する路地(スケール)に対峙させるため、
解像度を分解するよう、軽快に構成した。
◆周囲街区と連続するボリューム
周囲の建築のスケールに対して、4階から上層(4・5階)はボリュームを分離し、
屋上テラスを分散することで、隣地に接する建物と連続する関係をつくっている。 この記事にコメントする
設計・監理
川辺直哉建築設計事務所
構造設計
多田脩二構造設計事務所
用途
共同住宅
敷地面積
216.86㎡
延床面積
645.75㎡
構造
鉄筋コンクリート造
規模
地上5階
施工
宇佐美組
















関連Topics

























































































Page Top