2010.6.1 東京都大田区
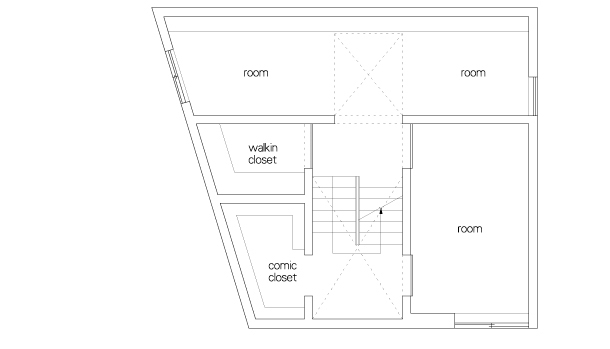
住宅地の交差点に建つ戸建住宅。コンパクトな敷地の中で階段室の吹き抜けを利用して、地面から1m程下がった地下1階から、1階、2階へと3層に渡って縦方向に広がりをつくりだしている。
南側の道路からの道路斜線、北側隣地からの北側斜線に沿った形で最大限、屋根型を高くし、2階部分は屋根裏を拡張させたような大きな気積の生活空間となっている。
階段が生活の場と結びつき、それぞれの室もまた繋がっているようなシークエンスをつくりだしている。 この記事にコメントする
南側の道路からの道路斜線、北側隣地からの北側斜線に沿った形で最大限、屋根型を高くし、2階部分は屋根裏を拡張させたような大きな気積の生活空間となっている。
階段が生活の場と結びつき、それぞれの室もまた繋がっているようなシークエンスをつくりだしている。 この記事にコメントする
設計・監理
川辺直哉建築設計事務所 担当/鈴木圭介
構造設計
吉田一成構造設計室
用途
戸建て住宅
敷地面積
61.4㎡
建築面積
31.87㎡
延床面積
86.53㎡
構造
木造 一部鉄筋コンクリート造
規模
地上2階、地下1階
工期
2009.11〜2010.06
施工
吉川の鯰

外観、夕景と夜景

各室を縦につなぐ階段

階段越しに吹き抜けを見上げる

下階と吹き抜け越しに大きくつながる

階段に設けられた開口でつながる寝室

玄関レベルから一段下りた半地下室

コンパクトでシンプルな造りの玄関

屋根型に習った大きな気積のLDK

地下1階平面図

1階平面図

2階平面図


























































































Page Top