2003.4.1 東京都北区
上中里の集合住宅
周囲は住宅が建て込んでいて、密集度の高い地域に計画された集合住宅である。
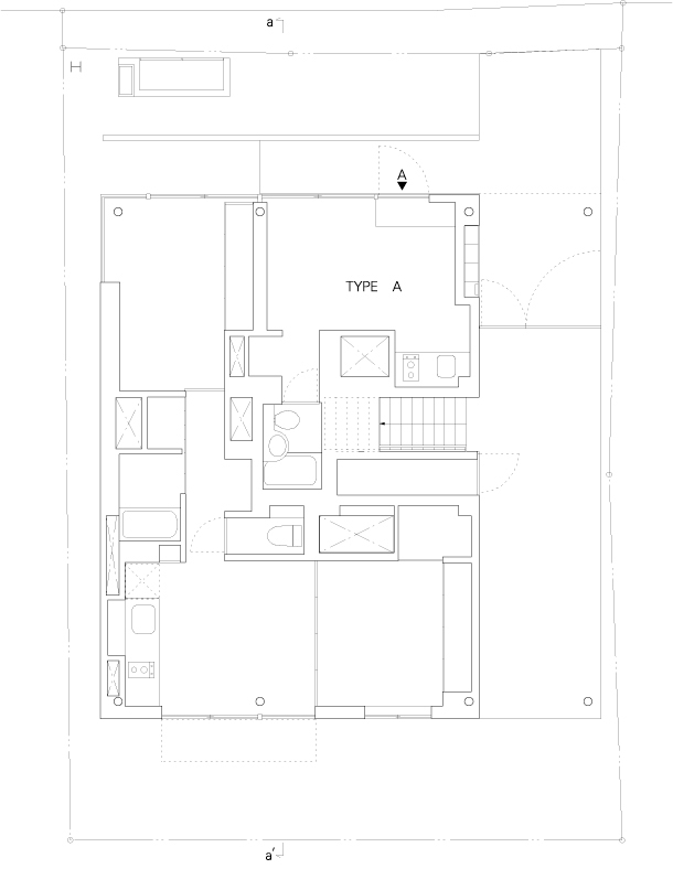
住戸配置と構造壁を一致させることが、この類の建築の枠を決めてしまう一因ではないかと考えて、戸境に位置する壁と構造壁とを切り離して考えている。その結果、構造的には最小限の耐力要素を用意すればよく、部屋の配置や向き、大きさなどを制限する要素を減らすことができる。
南面採光という形骸化した方位による優劣を取り外した。建物中央に階段室を配置し、外周面に対する住戸の表面積をできる限り確保して、それぞれの方位を特性として評価した。それはそのまま各住戸の特性へと置き換えられている。
日影条件によって配置が決まり、周囲との距離がつくられた。高さに比例して開放性が増していく。外部に対しては全面開口としている。各階は同じ平面形状であるが、周囲の状況を積極的にインテリアとして扱い、それぞれの住戸で質の異なる場所をつくり出している。 この記事にコメントする
住戸配置と構造壁を一致させることが、この類の建築の枠を決めてしまう一因ではないかと考えて、戸境に位置する壁と構造壁とを切り離して考えている。その結果、構造的には最小限の耐力要素を用意すればよく、部屋の配置や向き、大きさなどを制限する要素を減らすことができる。
南面採光という形骸化した方位による優劣を取り外した。建物中央に階段室を配置し、外周面に対する住戸の表面積をできる限り確保して、それぞれの方位を特性として評価した。それはそのまま各住戸の特性へと置き換えられている。
日影条件によって配置が決まり、周囲との距離がつくられた。高さに比例して開放性が増していく。外部に対しては全面開口としている。各階は同じ平面形状であるが、周囲の状況を積極的にインテリアとして扱い、それぞれの住戸で質の異なる場所をつくり出している。 この記事にコメントする
設計・監理
川辺直哉建築設計事務所 担当/神保兼一郎
構造設計
テクトニックコンサルタンツ
用途
共同住宅
敷地面積
162.79㎡
建築面積
97.36㎡
延床面積
342.15㎡
構造
鉄筋コンクリート造
規模
地上4階
工期
2002.09~2003.04
施工
岩本組

ファサードとアプローチ

周囲の抜けた明るい住戸

全面ガラスとすることで開放的な住戸となる

共用部を囲う、1階のオーナー住戸

水回りも住戸内に開いてシームレスな関係としている

水回りを開口と平行に配置しインテリアをより外部へ意識づけている

遠景 低層住宅に周りを囲われている

1階平面図

2階平面図

断面図


































































































Page Top