2003.10.1 神奈川県横浜市
通行量の比較的多い通りから少し入ると、そこには同じような2階建ての住宅が建ち並んでいる。その中にある幅4mに整備された私道の一番奥に、二世帯住宅として計画している。
二世帯で使い分け、個室を必要とする条件の中で、必然的に小さい単位の部屋へ分割されていき、その小さい単位を完全には接続せずに意図的に腰壁の高さや、視線の抜け方を操作して構成することでこの住宅はつくられている。小さな単位の部屋が隣り合い、区画されていながらも緩やかに接続された状態は、外部からの光や風が部屋をまたぐように現れ、オープンエンドで広がりのある場所をつくりだしている。 この記事にコメントする
二世帯で使い分け、個室を必要とする条件の中で、必然的に小さい単位の部屋へ分割されていき、その小さい単位を完全には接続せずに意図的に腰壁の高さや、視線の抜け方を操作して構成することでこの住宅はつくられている。小さな単位の部屋が隣り合い、区画されていながらも緩やかに接続された状態は、外部からの光や風が部屋をまたぐように現れ、オープンエンドで広がりのある場所をつくりだしている。 この記事にコメントする
設計・監理
川辺直哉建築設計事務所
構造設計
テクトニックコンサルタンツ
用途
2世帯住宅
敷地面積
77.89㎡
建築面積
41.94㎡
延床面積
80.91㎡
構造
木造
規模
地上2階
工期
2003.05~2003.10
施工
坂口工務店

裏手の庭と黒いシンプルな形状のボリューム

スリットによりつながる上下階

その他の室に多く抜けをもっている

小さな室が緩やかにつながる

室をむすぶ階段

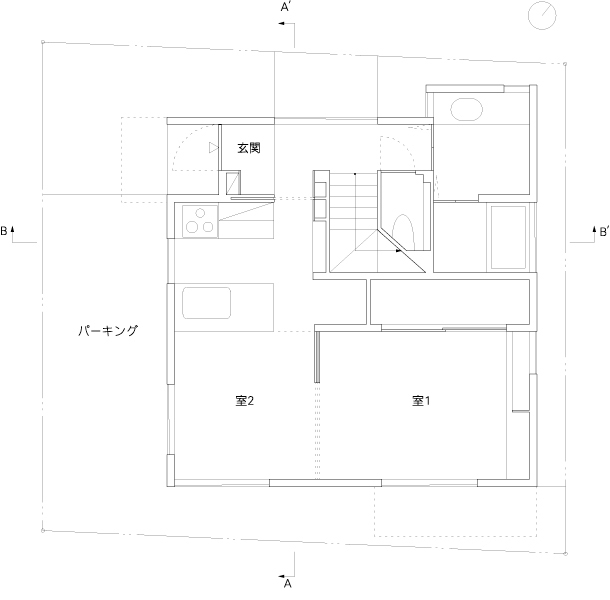
1階平面図

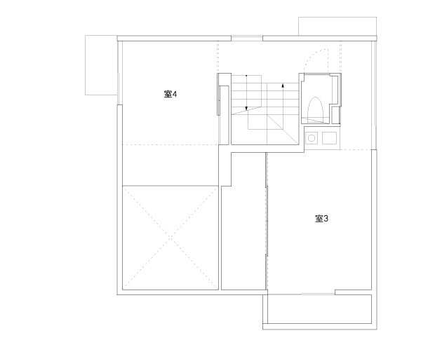
2階平面図

2.5階平面図

a-a

b-b


























































































Page Top