2005.3.1 神奈川県厚木市
厚木の集合住宅A
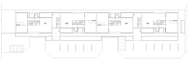
敷地周辺は、2階建ての住宅が比較的ゆとりをもちながら規則的に建ち並んでいて、周囲に高い建物はなく、見晴らしも良い。敷地の形状と駐車場確保のため、建築可能な範囲はかなり限定されていたので、短辺約6m、長辺約47mという極端に南北に細長い外形になった。高さは周囲の住宅から突出しないよう、可能な限り抑えている。
ここでは、内部と外部の関係性と集合住宅に求められる住戸の構成を、最小限の壁で成立させようと考え、外周に沿って配置される壁と、短辺方向の壁の組み合わせによる構造形式を選択している。外周の壁は建築の外形をかたちづくると同時に、内部と外部との間に等価な関係をつくりだしている。短辺方向の壁は、住戸の単位と共用部分とを区画している。また、床を支持するために配置された住戸中央の壁は、生活の手がかりとなるのと同時に、この1枚の壁によって住戸内部の構成が決定されている。
12の住戸はすべて同じ平面構成であるが、開口に現れる外の風景や、外部空間の抜けの距離感の差異が、それぞれに質の異なる場所をつくりだしている。
この記事にコメントする
ここでは、内部と外部の関係性と集合住宅に求められる住戸の構成を、最小限の壁で成立させようと考え、外周に沿って配置される壁と、短辺方向の壁の組み合わせによる構造形式を選択している。外周の壁は建築の外形をかたちづくると同時に、内部と外部との間に等価な関係をつくりだしている。短辺方向の壁は、住戸の単位と共用部分とを区画している。また、床を支持するために配置された住戸中央の壁は、生活の手がかりとなるのと同時に、この1枚の壁によって住戸内部の構成が決定されている。
12の住戸はすべて同じ平面構成であるが、開口に現れる外の風景や、外部空間の抜けの距離感の差異が、それぞれに質の異なる場所をつくりだしている。
この記事にコメントする
設計・監理
川辺直哉建築設計事務所
構造設計
テクトニックコンサルタンツ
用途
共同住宅
敷地面積
665.83㎡
建築面積
270.25㎡
延床面積
747.75㎡
構造
鉄筋コンクリート造
規模
地上3階
工期
2004.07〜2005.03
施工
ナカノフドー建設

共用階段と通路

玄関戸間とキッチン見通し

長手方向を見通す

長手方向を見返す

サッシで仕切られる玄関戸間

全体を見通す

1階平面図

2階平面図

断面図





























































































Page Top