2006.4.1 東京都港区
白金に建つマンション内のエクササイズルームの改修計画である。
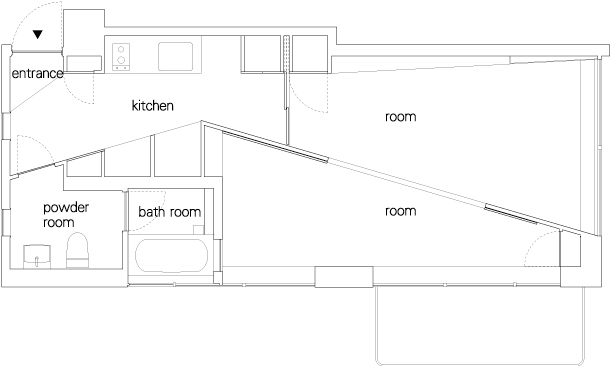
このエクササイズルームはほとんど利用されておらず、『空箱』となっていた場所を、利益収入の見込める賃貸物件としてコンバージョンすることが目的であった。
既存の用途から、間仕切りのない空間構成と一般的なマンションの改修では見かけることの少ない南東向きの大きく長い開口を見出した。そこに斜めの壁を挿入することによって住環境として適正な広さと大きく長い開口を受け入れる白と黒の2つの場所を用意した。
斜めに分節する開口の開けられた壁は、従来的な意味でのLDK構成を超えて、落ち着いた奥のある黒の場所と、明るく開放的な白の場所という抑揚を生んでいる。
都市生活という多様な住形態の受け皿としての住まいと、賃貸という一時的な都市環境との関わりのなかで素晴らしい眺望と光によって感じることの出来る時間を、提供できるのではないかと考えている。 この記事にコメントする
このエクササイズルームはほとんど利用されておらず、『空箱』となっていた場所を、利益収入の見込める賃貸物件としてコンバージョンすることが目的であった。
既存の用途から、間仕切りのない空間構成と一般的なマンションの改修では見かけることの少ない南東向きの大きく長い開口を見出した。そこに斜めの壁を挿入することによって住環境として適正な広さと大きく長い開口を受け入れる白と黒の2つの場所を用意した。
斜めに分節する開口の開けられた壁は、従来的な意味でのLDK構成を超えて、落ち着いた奥のある黒の場所と、明るく開放的な白の場所という抑揚を生んでいる。
都市生活という多様な住形態の受け皿としての住まいと、賃貸という一時的な都市環境との関わりのなかで素晴らしい眺望と光によって感じることの出来る時間を、提供できるのではないかと考えている。 この記事にコメントする
設計・監理
川辺直哉建築設計事務所 担当/辻昌志
用途
賃貸
延床面積
50.14㎡
構造
鉄筋コンクリート造+鉄骨造
規模
地上8階の5階
工期
2006.01~2006.03
施工
リフォームキュー

黒の部屋から白の部屋を見通す

長手方向の見通しと、洗面入り口

浴室に設けられた窓から見える、高層ビル群

白で統一された洗面室

平面図




























































































Page Top