2006.4.1 東京都渋谷区
恵比寿の長屋
両側を戸建ての住宅にはさまれ、緩やかにカーブしながら傾斜する巾2.5mほどの路地をゆっくりと登っていくと、歩いてきた路地と同様のスケールをもちながら、少し堀込まれた空間が現れる。地面は1m程下がった位置にあり、どこからがこの建築の敷地なのかはっきりとは認識できず、そのまま階段を数段降りると地面に潜ったような感覚を覚える。周囲は建物に囲まれているが、空は遮るもの無く開放され、正面は5m程の段差があり開けている。またその先には首都高の高架が見える。
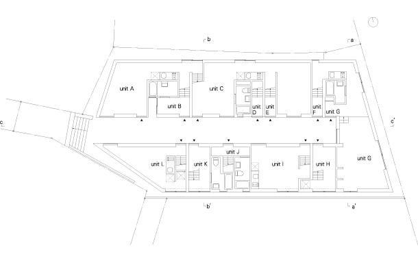
接続している路地を、敷地の中央にそのまま引き込み、両側にボリュームを分けて配置した。二つに分割された長屋は12の住戸に振り分けられ、その数だけかたちや広さをもっている。
この記事にコメントする
接続している路地を、敷地の中央にそのまま引き込み、両側にボリュームを分けて配置した。二つに分割された長屋は12の住戸に振り分けられ、その数だけかたちや広さをもっている。
この記事にコメントする
設計・監理
川辺直哉建築設計事務所 担当/田岡博之
構造設計
吉田一成構造設計室
用途
共同住宅
敷地面積
349.27㎡
建築面積
186.22㎡
延床面積
524.47㎡
構造
鉄筋コンクリート造
規模
地上3階
工期
2005.08~2006.04
施工
佐藤秀

引き込み道路から続くアプローチ通路

アプローチ通路先の住戸から見る

メゾネット住戸と鋭角突端の住戸

通路に配置された水回り

天井際の横連窓の開口

開口の向こうに対面するボリュームを見る

1階の通路に面した室

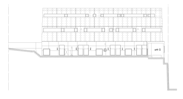
南側の遠景

通路を見通す夕景

1階平面図

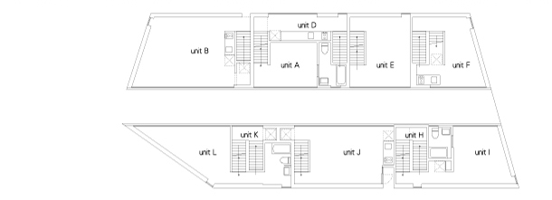
2階平面図

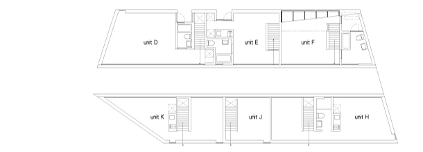
3階平面図

a-a

c-c





































































































Page Top