2007.3.1 神奈川県厚木市
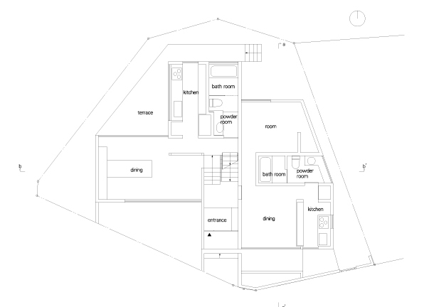
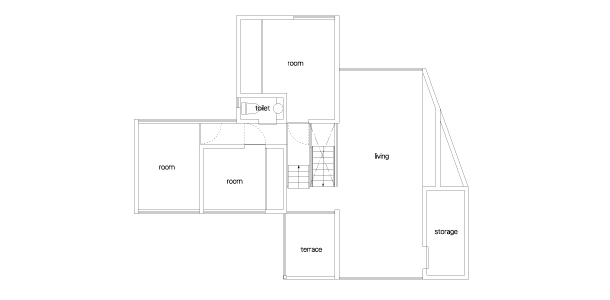
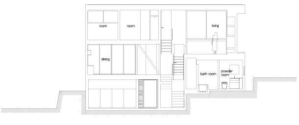
造成後30年を経た住宅地に建つ2世帯住宅である。多角形の敷地には、恵まれた周辺環境を背景とした様々な場所が生まれていた。敷地が東西に半階分の高低差を持って傾斜していることも、場の多様さをつくりだしている要因である。2世帯の暮らしに必要な部屋を、環境とのフィーリングを探るように、その場所と関係づけながら敷地に立体的に配していくことでこの住宅はつくられている。
人と車、親と子世帯、家族の距離感など、ここでは敷地の高低差から生まれたスキップフロアのレベル構成によってその関係が図られている。基礎であるRC部分は基壇として、地面に埋まる、接する、浮くといった木造では難しい場所をつくりだし、上部の在来木軸の架構はそのレベルを反復しながら全体を構成している。半階ずれながら隔てられた各スペースは、中央に位置する吹き抜け状の階段でひとつに繋がっている。 この記事にコメントする
人と車、親と子世帯、家族の距離感など、ここでは敷地の高低差から生まれたスキップフロアのレベル構成によってその関係が図られている。基礎であるRC部分は基壇として、地面に埋まる、接する、浮くといった木造では難しい場所をつくりだし、上部の在来木軸の架構はそのレベルを反復しながら全体を構成している。半階ずれながら隔てられた各スペースは、中央に位置する吹き抜け状の階段でひとつに繋がっている。 この記事にコメントする
設計・監理
川辺直哉建築設計事務所 担当/田岡博之
構造設計
吉田一成構造設計室
用途
二世帯住宅
敷地面積
152.39㎡
建築面積
75.02㎡
延床面積
184.94㎡
構造
木造 一部鉄筋コンクリート造
規模
地下1階+地上2階
工期
2006.08〜2007.03
施工
TTC建設

スキップフロアを見通す

玄関から2.5階へのアプローチ

道路から続くファサードの開口

隣接する林に向けて開かれたダイニング

明るい水回り

北側ファサード

北側テラスとダイニング

地下1階平面図

1階平面図

2階平面図

b-b

a-a





























































































Page Top