2010.11.1 東京都新宿区
御留山ハウス
新宿区に建つ6世帯のコーポラティブハウス。接続している道路からアプローチの階段を下りると、周囲から緩やかに切り離された、中庭のような場所が現れる。そこでは各住戸のエントランスを見渡すことがえでき、見上げると建物の外形に縁取られた空が目に入ってくる。遠く副都心を眺める住戸、接続道路に面して街並みに参加する住戸、地面との距離が近く緑や土を近くに感じることのできる住戸。
この場所の持つ様々な特徴は住戸の個性となり、敷地の多様さは住戸の中にいくつもの異なる場所をつくりだしている。 この記事にコメントする
この場所の持つ様々な特徴は住戸の個性となり、敷地の多様さは住戸の中にいくつもの異なる場所をつくりだしている。 この記事にコメントする
設計・監理
川辺直哉建築設計事務所 担当/田岡博之 辻昌志
構造設計
吉田一成構造設計室
用途
長屋(6戸)
敷地面積
460.99㎡
建築面積
217.37㎡
延床面積
547.58㎡
構造
鉄筋コンクリート
規模
地上3階、地下1階
工期
2009.11〜2010.11
施工
佐藤秀
プロデュース
アーキネット

前面道路から一段下りた中庭へのアプローチ

空に開けた中庭

居室と連続して広がりを感じさせる屋上テラス。床はウォルナットのフローリング

トップライトからの光がインテリアを包む

北面の採光がつくる落ち着きのある和室

コンクリート打ち放しの仕上げ面に光がゆるやかに廻る

多様な開口面がつくる明るいインテリア

家具のように設えられたキッチンと天井高の高いリビング

トップライトからの光が、蹴上板のない階段を介して下階まで落ちる。

浴室の開口から光が入る浴室洗面

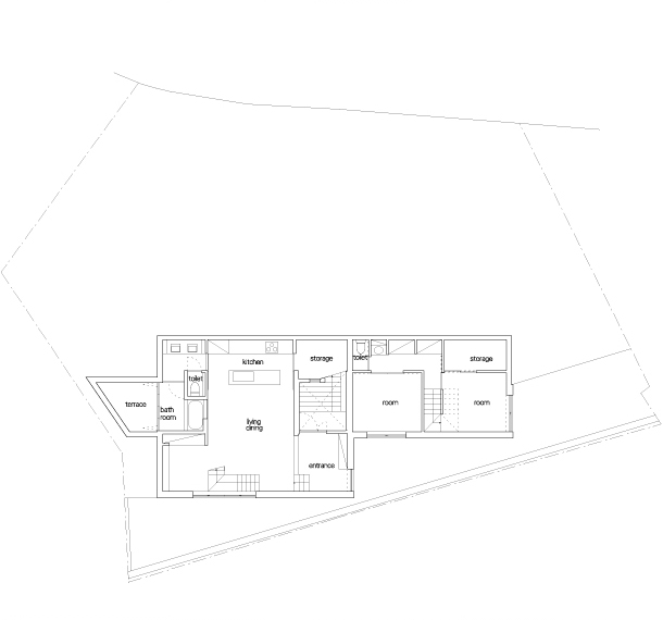
地下1階平面図

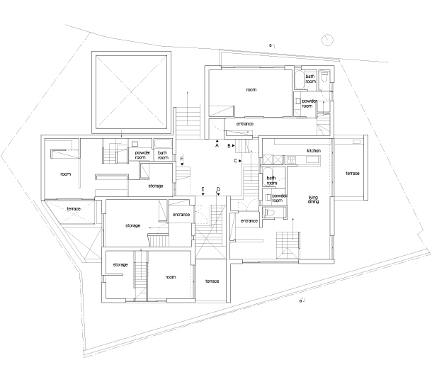
1階平面図

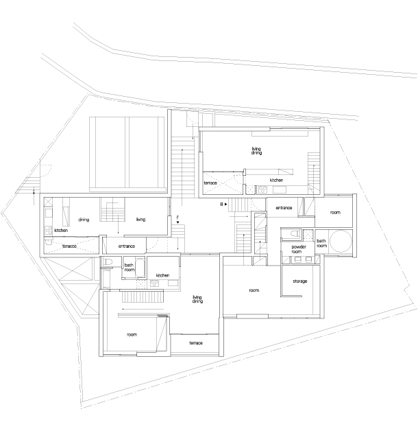
2階平面図

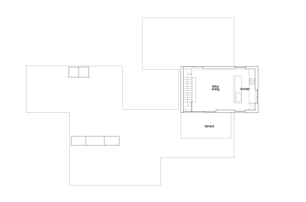
3階平面図

断面図




関連Topics





























































































Page Top