2007.11.1 東京都品川区
DUO COURT 大井
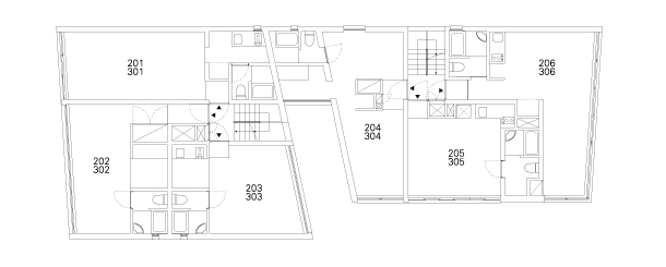
敷地周囲は2階建ての住宅が建ち並んでいて、その間には小さいながらも気持ちの良いヌケを持つ場所が点在していた。それぞれの住宅の庭や、敷地境界線を挟んだ建物同士の距たりといった、街のスケールからみると隙間のような場所だけれども、周囲のこのような場所と敷地の中が繋がっていけば、少しだけ敷地境界線をはみ出して、建築を考えることができるのではないだろうか。またこの隙間のような場所が連鎖していくと、敷地境界線によって区画された街の様子が変わるきっかけになるような気がしている。
アプローチ通路を含む共用のスペースが敷地周囲の街の隙間を繋ぐように配置され、通路として機能するだけでなく、住戸に対しては開口を通して敷地の外を取り込む媒体としても機能することで、各住戸は集合の一部でありながら、それぞれに外部との関係をもつことができた。 この記事にコメントする
アプローチ通路を含む共用のスペースが敷地周囲の街の隙間を繋ぐように配置され、通路として機能するだけでなく、住戸に対しては開口を通して敷地の外を取り込む媒体としても機能することで、各住戸は集合の一部でありながら、それぞれに外部との関係をもつことができた。 この記事にコメントする
設計・監理
川辺直哉建築設計事務所 担当/神保兼一郎
構造設計
吉田一成構造設計室
用途
共同住宅
敷地面積
299.66㎡
建築面積
179.73㎡
延床面積
522.8㎡
構造
鉄筋コンクリート造
規模
地上3階、地下1階
工期
2007.03〜2008.02
施工
佐藤秀

各階毎に高さの変えられた開口部

隣の住戸の隙間を向いた外部スペースと下部のアプローチ通路

敷地内の外部空間

建物内部から見渡す外部と中庭

低い立ち上がりの居室と庭の関係

アプローチ通路への視線が操作された開口

空への視線を意識させる開口高さ

腰までの開口と居室の関係

上階に行くほど大きく設けられた開口


1階平面図

2階平面図

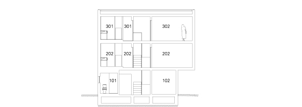
断面図1

断面図2


























































































Page Top