2008.2.1 東京都港区
西麻布3243
敷地は、商業住宅、第二種中高層住居地域をまたいでおり、その北側と南側では建物の高さが著しく異なる。共同住宅でありながら、ビジネスでの利用も想定したSOHOをプログラムとしている。天空率を利用して高さを確保し、住戸面積を考慮した結果、地下1階、地上8階建てが最適であると思われた。上層階4層と下層階で、外形として南北に1m程ズレをつくることで、開放された視界の広がりや、適度なキョリとヌケが建物の周囲につくられ、それぞれの階層に性格の異なる特徴的な場所をつくることができた。エレベーターもこの小さな平面の中では積極的に取り込まなければならないが、そこに高度なセキュリティシステムを組み込むことで、エレベーターから直に専有部へアクセスするようになっている。
この記事にコメントする
設計・監理
川辺直哉建築設計事務所 担当/辻昌志
構造設計
多田脩二構造設計事務所
用途
共同住宅
敷地面積
115.62㎡
建築面積
63.44㎡
延床面積
436.76㎡
構造
鉄骨造+鉄骨鉄筋コンクリート造
規模
地上8階、地下1階
工期
2007.03〜2008.02
施工
佐藤秀

道路側外観

エントランスアプローチ

南側に対して全面開口

南北の部屋を繋ぐ細い通路

内部から見える高層ビル群と手前の低層住宅群

夕景

ドライエリアからの採光で地下を感じさせない地下階

フルハイトのサッシから地下に光が落ちる

細い廊下から広い空間へ

南側低層住宅地の景色

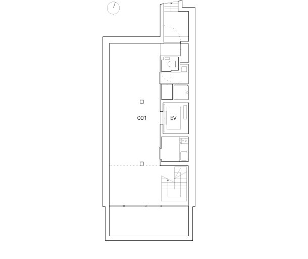
地下1階平面図

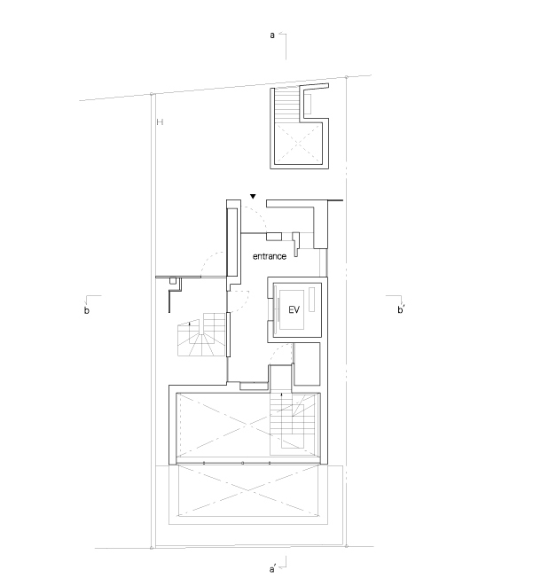
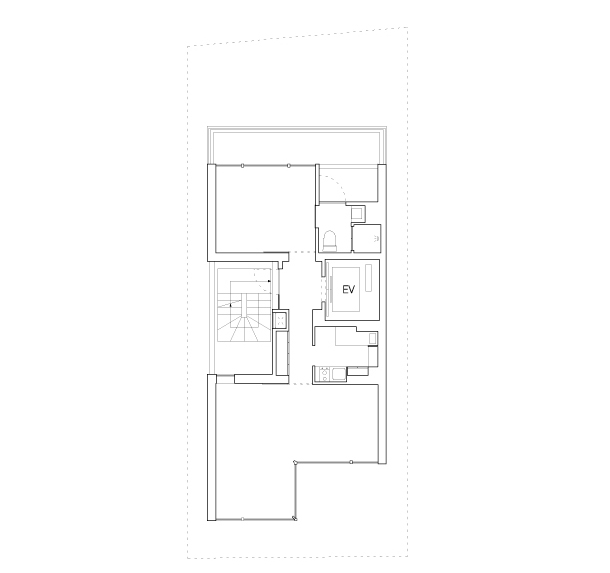
1階平面図

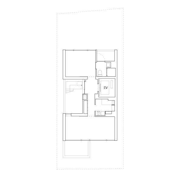
2階平面図

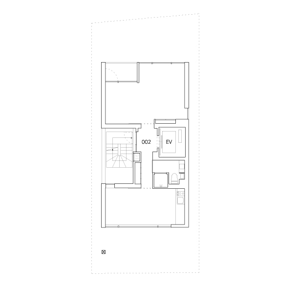
3、4階平面図

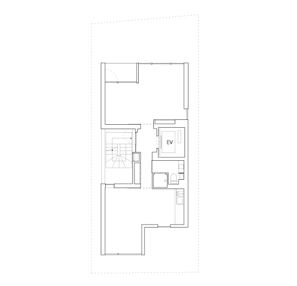
5、6階平面図

7、8階平面図

断面図



































































































Page Top