2008.3.1 神奈川県厚木市
設計・監理
川辺直哉建築設計事務所
構造設計
川辺直哉建築設計事務所
用途
個人住宅
敷地面積
165.77㎡
建築面積
52.52㎡
延床面積
99.06㎡
構造
木造
規模
地上2階
工期
2007.12〜2008.03
施工
藤建ホーム

緑道に面した裏手

広い土間と水回りへのアプローチ

外部に開かれたダイニング

光が差し込むリビング

屋根形状により抑えられたワークスペース

道路を見下ろす広い玄関スペース

南北に採光が取られた寝室

2階へと続く階段

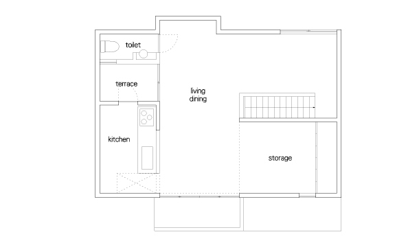
1階平面図

2階平面図

断面図

























































































Page Top