2008.4.1 神奈川県厚木市
敷地は4mほど高低差のある上下2つの道路に接続した傾斜地である。
斜面のもつ高さ方向の変化と道路との関係は、この場所での生活を豊かにするとても魅力的な条件に思え、その斜面に寄り添いながらも自立している建築をつくりたいと考えた。
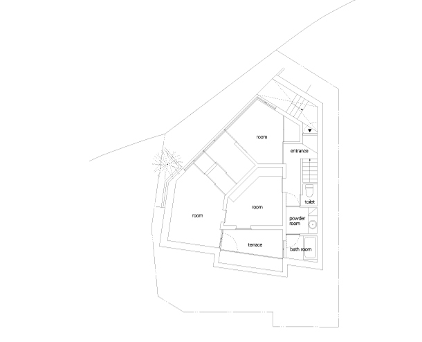
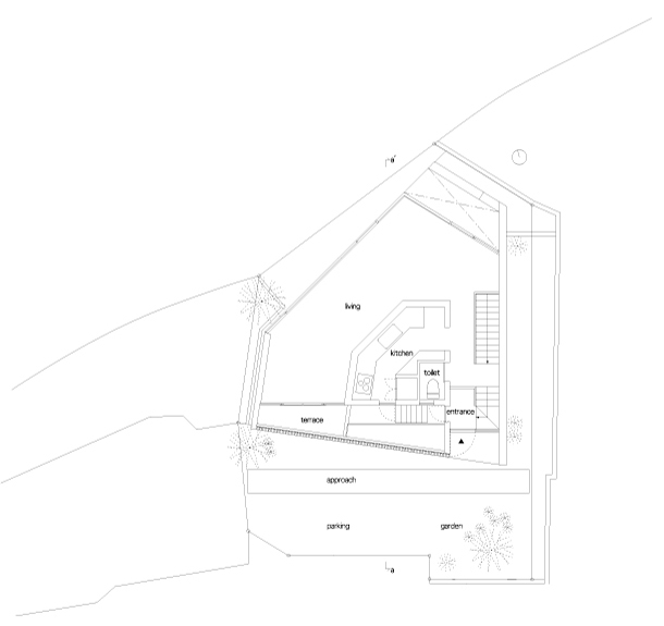
高低差の最も大きい場所に上下を繋ぐ動線をつくり、その途中に性格の異なる二つのフロアを設けている。上下階それぞれが地面と接続されているので、生活のスタイルや状況に応じてアプローチを使い分けることが可能である。
上階はその眺望を生かし、外部に対して開放的で明るい場所になっている。採光条件の安定した北側ではパノラミックな開口に緑豊かな山々と街並みが広がり、南側は天井いっぱいの開口が日差しを受け入れてくれる。遠く大山を望むキッチンスペースの周囲は、室内・室外を介して動線が繋がれていて、斜面と近づいたり離れたりすることで生活の場所がつくられている。下階は正面の道路と視線の交錯を避けるため、開口を極力抑えて視線の抜ける方向を制御し、明暗差のある室内になっている。諸室は中央の部屋2を取り囲むように配置され、建具を使って部屋同士の関係を使い方に応じて変化させることができる。寝室に面したドライエリアから空を見上げると、そこが傾斜した土地の底であることを気づかせてくれる。
敷地上部から見ると軒の低い平屋のように見え、下の道路から見ると背の高い2層の建物に見える。敷地と周囲との関わり方やその状況の変化は大きくそして連続的で、その斜面の多様さこそがこの建築の表情をつくりだしているのである。
この記事にコメントする
斜面のもつ高さ方向の変化と道路との関係は、この場所での生活を豊かにするとても魅力的な条件に思え、その斜面に寄り添いながらも自立している建築をつくりたいと考えた。
高低差の最も大きい場所に上下を繋ぐ動線をつくり、その途中に性格の異なる二つのフロアを設けている。上下階それぞれが地面と接続されているので、生活のスタイルや状況に応じてアプローチを使い分けることが可能である。
上階はその眺望を生かし、外部に対して開放的で明るい場所になっている。採光条件の安定した北側ではパノラミックな開口に緑豊かな山々と街並みが広がり、南側は天井いっぱいの開口が日差しを受け入れてくれる。遠く大山を望むキッチンスペースの周囲は、室内・室外を介して動線が繋がれていて、斜面と近づいたり離れたりすることで生活の場所がつくられている。下階は正面の道路と視線の交錯を避けるため、開口を極力抑えて視線の抜ける方向を制御し、明暗差のある室内になっている。諸室は中央の部屋2を取り囲むように配置され、建具を使って部屋同士の関係を使い方に応じて変化させることができる。寝室に面したドライエリアから空を見上げると、そこが傾斜した土地の底であることを気づかせてくれる。
敷地上部から見ると軒の低い平屋のように見え、下の道路から見ると背の高い2層の建物に見える。敷地と周囲との関わり方やその状況の変化は大きくそして連続的で、その斜面の多様さこそがこの建築の表情をつくりだしているのである。
この記事にコメントする
設計・監理
川辺直哉建築設計事務所 担当/田岡博之
構造設計
多田脩二構造設計事務所
用途
個人住宅
敷地面積
121.87㎡
建築面積
56.12㎡
延床面積
109.99㎡
構造
鉄筋コンクリート
規模
地上1階、地下1階
工期
2007.07〜2008.04
施工
愛川建設

ファサード 裏手半分が徐々に埋まる

昼景と夕景の外観

木のボリュームに囲まれたキッチン

傾斜地に開いた開放的なダイニングスペース

階段室側からリビングを見る

ドアの移動に合わせて部屋の機能を変えられる

外部のやわらかな光が入る和室

水まわりと中庭

照明スリットと道路側開口のある寝室

玄関から傾斜上へと真っ直ぐにつながる

地下1階平面図

1階平面図

断面図

































































































Page Top