2008.5.1 埼玉県ふじみ野市
埼玉県ふじみ野市という、東京の首都圏密集地とは違い、まだ田畑の残る少しのどかな地域に建てられた個人住宅である。
建て主は30代のご夫婦で、現状二人住まいとして計画されている。敷地は地方都市の駅前開発による高密度な住宅地ではなく、郊外の木造2階建ての戸建て住宅が立ち並ぶ地域にある70m2弱の小さな敷地であり、東西には隣接する住宅、北側に4mの前面道路、南側に駐車場という配置になっている。南側駐車場は平置きの駐車場で、2階レベルでは大きく開けているので、採光と通風の為の大きな開口部が設けられている。
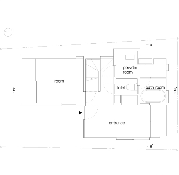
全体の構成としては1階には玄関となるコンクリートの土間、夫婦の寝室、トイレや洗面、お風呂などの水回りが配置されており、2階にはリビング、そのリビングから1mほど上がった2.5階にキッチンが配置されている。またキッチンの脇にはリビングとキッチンに向いて開かれた屋外テラスが設けられている。リビングとキッチンのレベルをずらすことで、2階リビングと土間を繋ぐ抜けができ、キッチンもまたリビングと繋がっているので、土間-リビング-キッチンというこの住宅の中で大部分を占める場所同士がゆるやかに繋がっている。そのため家の中にいる大半はお互いの気配が感じられるけれど、干渉しあわない大らかな関係性を生む家となっている。 この記事にコメントする
建て主は30代のご夫婦で、現状二人住まいとして計画されている。敷地は地方都市の駅前開発による高密度な住宅地ではなく、郊外の木造2階建ての戸建て住宅が立ち並ぶ地域にある70m2弱の小さな敷地であり、東西には隣接する住宅、北側に4mの前面道路、南側に駐車場という配置になっている。南側駐車場は平置きの駐車場で、2階レベルでは大きく開けているので、採光と通風の為の大きな開口部が設けられている。
全体の構成としては1階には玄関となるコンクリートの土間、夫婦の寝室、トイレや洗面、お風呂などの水回りが配置されており、2階にはリビング、そのリビングから1mほど上がった2.5階にキッチンが配置されている。またキッチンの脇にはリビングとキッチンに向いて開かれた屋外テラスが設けられている。リビングとキッチンのレベルをずらすことで、2階リビングと土間を繋ぐ抜けができ、キッチンもまたリビングと繋がっているので、土間-リビング-キッチンというこの住宅の中で大部分を占める場所同士がゆるやかに繋がっている。そのため家の中にいる大半はお互いの気配が感じられるけれど、干渉しあわない大らかな関係性を生む家となっている。 この記事にコメントする
設計・監理
川辺直哉建築設計事務所 担当/辻昌志
構造設計
吉田一成構造設計室
用途
個人住宅
敷地面積
68.49㎡
建築面積
36.61㎡
延床面積
71.94㎡
構造
木造
規模
地上2階
工期
2007.12〜2008.05
施工
愛川建設

周辺の環境になじむ少し小さな外観

2階部分と玄関戸間がスリットでつながる

キッチンからリビングを見下ろす

色彩豊かな内装

段板のみの階段から光が落ちる

キッチンレベルに設けられたテラスとリビングがつながる

階段を見下ろす

各面から光が入る明るい1階

1階平面図

2階平面図

a-a

b-b



























































































Page Top