2006.9.1 東京都目黒区
20戸ほどのマンションの一室を改装して新たに賃貸として貸し出す計画。
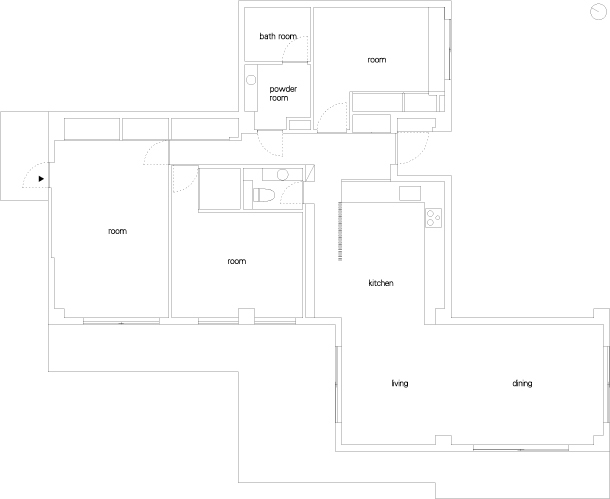
130m2を超える大きな面積を、小割りに間仕切りが建っていた既存壁を解体し、LDKの大きな一室空間に整理した。キッチンにはL字型にゆったりとした長さのものを新設し、床の色に合わせた木質の仕上げとしている。フローリングはパイン材の無垢とし、自然な風合いのインテリアとなっている。 この記事にコメントする
130m2を超える大きな面積を、小割りに間仕切りが建っていた既存壁を解体し、LDKの大きな一室空間に整理した。キッチンにはL字型にゆったりとした長さのものを新設し、床の色に合わせた木質の仕上げとしている。フローリングはパイン材の無垢とし、自然な風合いのインテリアとなっている。 この記事にコメントする
設計・監理
川辺直哉建築設計事務所
用途
賃貸
構造
鉄筋コンクリート造
規模
地上3階の3階
工期
2006.8~2006.09
施工
月造

キッチンと玄関の仕切りルーバー

壁一面の収納スペース

自然な風合いのインテリア

リビングの開口を通して玄関に光が届く


























































































Page Top