2011.12.22 東京都世田谷区
世田谷区の緑道に面する6世帯のコーポラティブハウス。緑道は、生活通路であり、公園のようであり、庭のような場所でもある。そこに寄り添いながら生活するということは、とても贅沢なことのように思える。敷地内にはできる限り緑を配置して、緑道を敷地の中まで引き込めたらと考えた。シンプルな生活の器は、ここでしか体験出来ない日常を演出してくれる舞台になるだろう。また、周辺環境のおおらかさに呼応するように、六つの家族が暮らす「おおきな家」のような、 ひとつ屋根の下、そっと緑と寄り添うように 包容力のある住まいを目指した。
この記事にコメントする
設計・監理
川辺直哉建築設計事務所 担当/鈴木圭介 辻昌志
構造設計
構造設計室なわけんジム
用途
長屋(6戸)
敷地面積
299.77㎡
建築面積
148.92㎡
延床面積
561.70㎡
構造
鉄筋コンクリート
規模
地上3階 地下1階
工期
2010.10〜2011.08
施工
アサヒ
プロデュース
アーキネット

緑道から建物を見る

エントランス側外観

緑道側ファサード

俯瞰

A住戸1 地下1階

A住戸2 地下1階

B住戸1 3階

B住戸2 2階

C住戸1 1階

C住戸2 地下1階

C住戸3 地下1階

D住戸1 3階

D住戸2 3階

D住戸3 2階

E住戸1 地下1階

E住戸2 地下1階

F住戸1 3階

F住戸2 2階

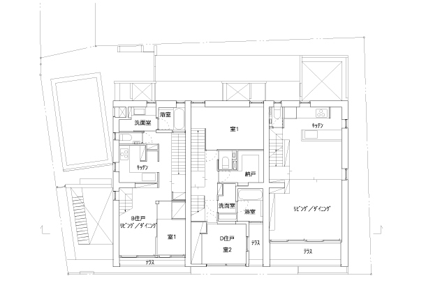
1階平面図

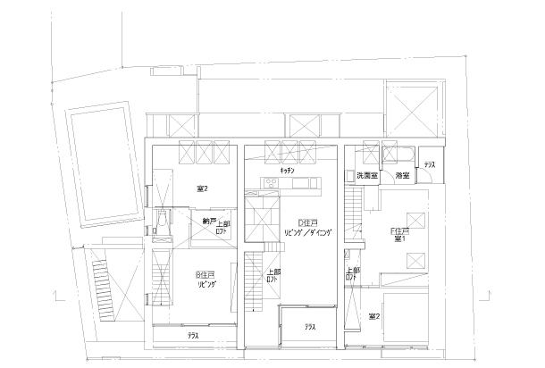
2階平面図

3階平面図

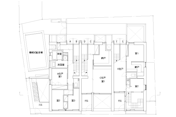
地下1階平面図

屋根伏図

断面図




























































































Page Top