2011.12.22 埼玉県さいたま市
北浦和VALLEY
北浦和駅から徒歩数分の住宅街の中にある、3階建て14戸の賃貸集合住宅である。駅周辺を少し離れると、敷地が広く、ゆとりを持った建ち方をした戸建住宅が並び、庭や建物間に豊かな緑の抜けを感じる事ができる。
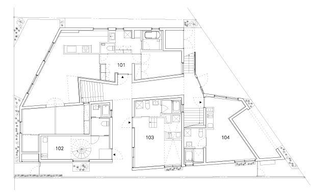
2面道路に接している敷地の特性と周辺環境が持つ抜けをいかに共用部に引き込んで住戸環境と通路としての質に結びつけるかを考えた。要望された条件として、25〜30平米の1R形式でありながらさまざまなプランを持つ部屋13戸、80平米ほどのファミリーに対応出来る部屋1戸、全14戸の構成となっている。周辺環境を共用部に引き込み5つのヴォリュームに分節することにより、住戸は独立性の高い平面を持つ。隣接する戸建住宅の空地を取り込み、隣家の高さ関係を考慮しながら視線を空に導くなど外部環境の関わり方や視線の制御を考慮しながら共用部、開口部が配置されている。対面する壁面に少しずつ角度をつける事で住戸同士の関係の制御し、谷となった共用部に風が抜ける。風は上下階を通じて抜けていき、一日を通して陽の移り変わりを感じる事ができる。共用部は環境と生活が結びついた豊かな場所となる。 この記事にコメントする
2面道路に接している敷地の特性と周辺環境が持つ抜けをいかに共用部に引き込んで住戸環境と通路としての質に結びつけるかを考えた。要望された条件として、25〜30平米の1R形式でありながらさまざまなプランを持つ部屋13戸、80平米ほどのファミリーに対応出来る部屋1戸、全14戸の構成となっている。周辺環境を共用部に引き込み5つのヴォリュームに分節することにより、住戸は独立性の高い平面を持つ。隣接する戸建住宅の空地を取り込み、隣家の高さ関係を考慮しながら視線を空に導くなど外部環境の関わり方や視線の制御を考慮しながら共用部、開口部が配置されている。対面する壁面に少しずつ角度をつける事で住戸同士の関係の制御し、谷となった共用部に風が抜ける。風は上下階を通じて抜けていき、一日を通して陽の移り変わりを感じる事ができる。共用部は環境と生活が結びついた豊かな場所となる。 この記事にコメントする
設計・監理
川辺直哉建築設計事務所 担当/辻昌志 西岡諒
構造設計
多田脩二構造設計事務所
用途
共同住宅(14戸)
敷地面積
281.45㎡
建築面積
182.14㎡
延床面積
498.66㎡
構造
鉄筋コンクリート
規模
地上3階
工期
2010.12〜2011.09
施工
佐藤秀
受賞
Good Design Award 2012

北側外観とエントランス

2層吹き抜けの共用部

2・3階共用部 上下階に風が抜ける

テラスから共用部を見る

住戸は独立性の高い平面を持つ

少し掘る事により天井高を確保し有効スペースを作る

各辺から光を住戸内に取り込む

玄関土間広くとり居室のアクセントとする

壁天井のモルタル仕上げが住戸内のアクセントとなり住戸内の繋がりを生む

外部への抜けを意識した開口部

グレーで統一された住戸

1階平面図

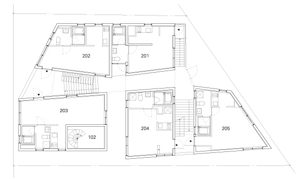
2階平面図

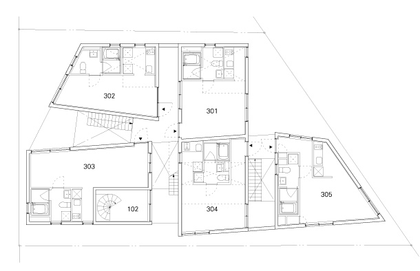
3階平面図

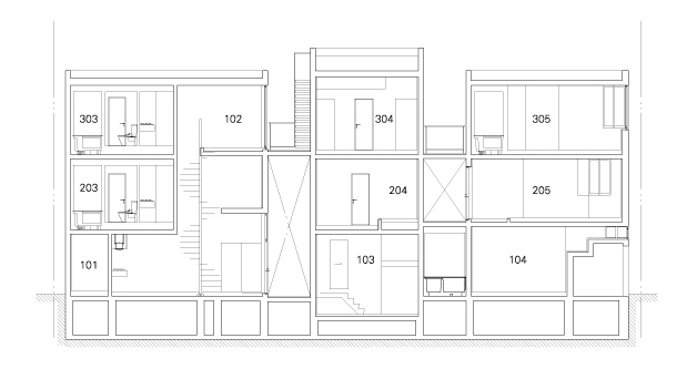
断面図1

断面図2

北側外観

南側外観

2面接道する敷地









関連Topics

























































































Page Top