2009.3.1 神奈川県青葉区
神奈川県青葉区の住宅。周囲には畑や果樹林があり、のどかな風景のなかに並び沿いの住宅と共に、駐車場を前にした立方体のボリュームと、南側の隣地の高低差の影響を感じさせないような縦長のボリュームが寄り添うように建っている。
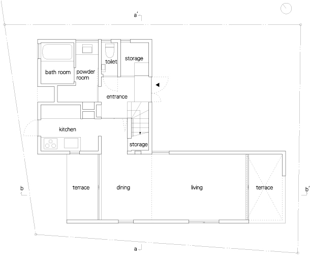
1階のLDKは天井高さを最大限確保し東西に大きな抜けのあるインテリアとなっている。
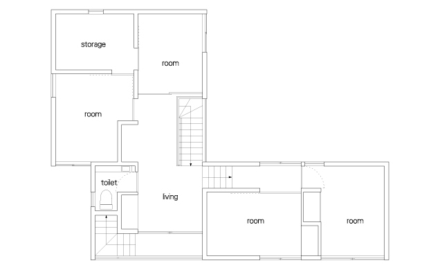
周囲の高低差を読み解きながら、住戸内のフロアレベルを3段階設定し、リズムのある生活の場となっている。
この記事にコメントする
1階のLDKは天井高さを最大限確保し東西に大きな抜けのあるインテリアとなっている。
周囲の高低差を読み解きながら、住戸内のフロアレベルを3段階設定し、リズムのある生活の場となっている。
この記事にコメントする
設計・監理
川辺直哉建築設計事務所 担当/辻昌志
構造設計
吉田一成構造設計室
用途
個人住宅
敷地面積
131.5㎡
建築面積
58.81㎡
延床面積
102.85㎡
構造
木造
規模
地上2階
工期
2008.10〜2009.03
施工
愛川建設

外観

北側のインナーテラスとつながるダイニング

吹き抜けによる明るく広い空間。階段の横に大きな開口をとり、光が1階にも届く。

開口部に沿うように移動する階段

大きな開口と浮きぬけにつながる小さな室内開口

南北のインテリアの見通しと明るい階段空間

空地と隣地高低差に挟まれた細長いボリューム

1階平面図

2階平面図

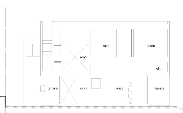
b-b

a-a
関連Topics

























































































Page Top