2012.4.18 神奈川県厚木市
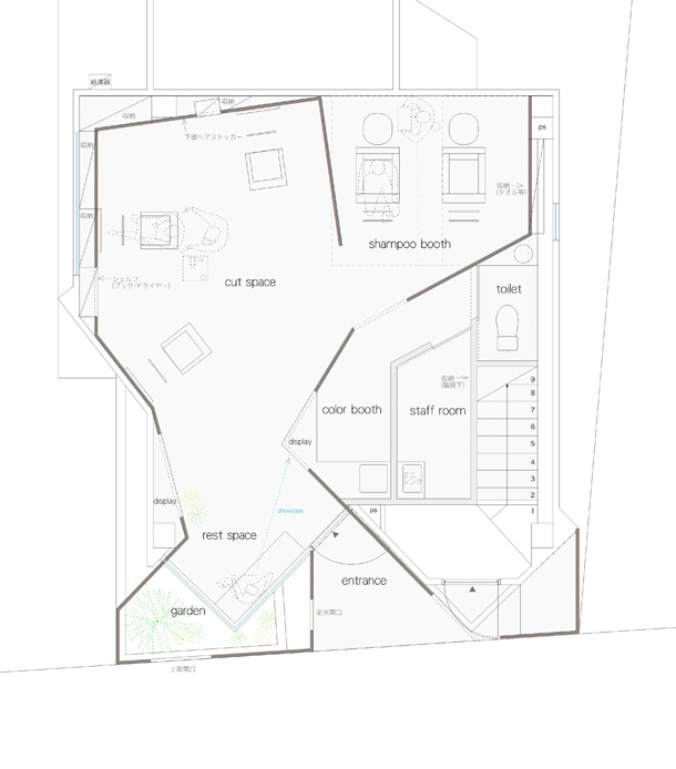
以前からお付き合いのあるお施主様の新規美容院の計画。外壁から続く壁が、既存壁をトレースするように配置され、その既存壁との間の空間を収納やディスプレイに利用しています。
この記事にコメントする

外観イメージ

インテリア模型

プラン
関連Topics

























































































Page Top