2009.5.1 東京都練馬区
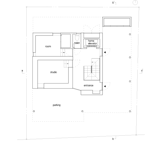
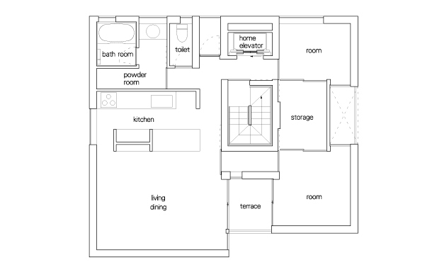
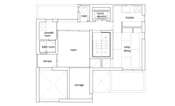
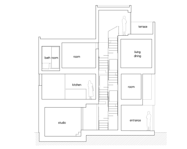
周辺が立て込んだ住宅地に建つ3階建ての二世帯住宅。道路斜線と北側斜線の稜線に納まる、凸凹した山のような形となっている。周囲に開けた視界が確保できない為、外形を凸凹させて吹き抜けやテラスを設け、外部からのプライバシーを遮りつつ、二世帯の距離感も保っている。小さく分割された外壁面は周囲への圧迫感を減らす役割も持っている。開口部の少ない山のような印象をつくりながらも、内部は一日を通して明るい光が巡る。中央には1階からペントハウスまでまっすぐに伸びる階段が貫いており、家族間の気配や陽の光、夏場の暖気を抜く風の通り道となっている。諸室が多い二世帯で、室の数と同じくらいの外部環境を用意しながら、ひとつの家として仕立てている。
この記事にコメントする
設計・監理
川辺直哉建築設計事務所 担当/田岡博之 増山淳
構造設計
なわけんジム
用途
個人住宅
敷地面積
151.95㎡
建築面積
86.99㎡
延床面積
179.06㎡
構造
鉄骨造
規模
地上3階
工期
2008.10〜2009.05
施工
泰進建設

ファサードと周辺環境

テラス越しに隣り合う居室とつながる

南側採光の明るい和室

天井高さの高いダイニングからつながるキッチン

障子越しに設けられた開口部

各室をつなぐ鉄骨階段

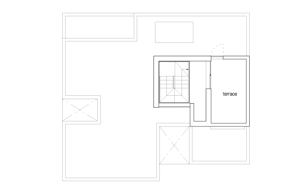
階段頂部のペントハウス

白で統一された1階エントランス

階段途中で居室とつながる

1階平面図

2階平面図

3階平面図

屋上平面図

a-a

b-b
関連Topics

























































































Page Top