2011.4.1 東京都品川区
LUMIERE 南品川集合住宅A.B.C
T字道路によって分けられた3つの敷地に建つ建築群である。それぞれの敷地は接道条件と用途地域が異なり、事業収支を考慮した建物規模には大きな差が現れ、大きい順にA(鉄骨造),B(鉄筋コンクリート造),C(木造)計画としている。住宅のスケールと国道沿いの大きなスケールが切り替わる場所で、それらを繋げていくような建築を目指した。できる限りシンプルな形態を採用しながら、道路をひとつの床として捉え各建築の床レベルをずらす、立面をひな壇状にセットバックさせるといった操作により、生活者と公共の場との調停を図っている。建築を道路をも含んだ街としてとらえ、生活とデザインが一体となった形態を導き出している。
街のスケールと建築が繋がっていくように、3棟のボリューム感、形状、プロポーションを第一に考え、初期段階での検討には特に注視した。またその形態が主用途である住居の構成から部屋の居場所までを定義するような、街から生活レベルでの視点がひとつながりになるようなプランニングを意識した。都市と生活の接点となる開口部は、地面際の小さな開口から見上げるような高さのガラス壁面まで、高さに応じたデザインとした。
また、コストや施工性を考慮し、異なる構造形式を採用しながらも、使用する材料の微差を全体の表現に馴染ませていくことや、各部のディテールまでを街と生活との接点として一貫したデザインコントロールを行うことが、賃貸住宅として付加価値を得ながらも街に対する提案に繋がると考えた。
この記事にコメントする
街のスケールと建築が繋がっていくように、3棟のボリューム感、形状、プロポーションを第一に考え、初期段階での検討には特に注視した。またその形態が主用途である住居の構成から部屋の居場所までを定義するような、街から生活レベルでの視点がひとつながりになるようなプランニングを意識した。都市と生活の接点となる開口部は、地面際の小さな開口から見上げるような高さのガラス壁面まで、高さに応じたデザインとした。
また、コストや施工性を考慮し、異なる構造形式を採用しながらも、使用する材料の微差を全体の表現に馴染ませていくことや、各部のディテールまでを街と生活との接点として一貫したデザインコントロールを行うことが、賃貸住宅として付加価値を得ながらも街に対する提案に繋がると考えた。
この記事にコメントする
設計・監理
川辺直哉建築設計事務所 担当/田岡博之
構造設計
吉田一成構造設計室
用途
共同住宅(A,B)店舗(C)
敷地面積
181.49(A)㎡
210.99(B)㎡
44.31(C)㎡
210.99(B)㎡
44.31(C)㎡
建築面積
141.09(A)㎡
148.01(B)㎡
26.99(C)㎡
148.01(B)㎡
26.99(C)㎡
延床面積
819.61(A)㎡
469.90(B)㎡
44.67(C)㎡
469.90(B)㎡
44.67(C)㎡
構造
鉄骨造(A)鉄筋コンクリート造(B)木造(C)
規模
地上10階(A)
地上3階、地下1階(B)
地上2階(C)
地上3階、地下1階(B)
地上2階(C)
工期
2009.06〜2011.04
施工
三浦工務店

T路地からの見通し

長手に設けられた開口

キッチン前面に大きく開いた開口

B棟のファサード

広い土間の玄関スペースとキッチンから続く洗面室

腰高を抑えて大きく横長に開いた開口

両面にインテリアを挟んで向かい合う開口

ドライエリアに開放的な地下住戸

国道側に開いたC棟1階

C棟2階から国道を見下ろす

屋根伏図

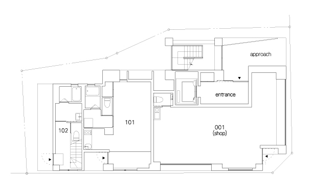
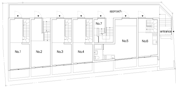
A 1階平面図

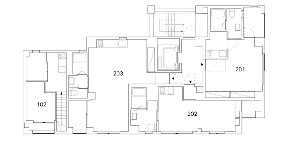
A 2階平面図

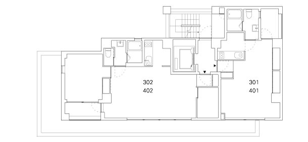
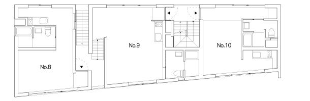
A 3、4階平面図

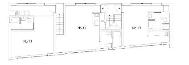
A 5階平面図

A 6階平面図

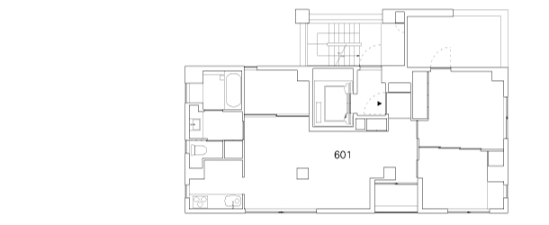
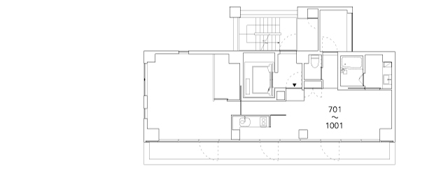
A 7〜10階平面図

B 1階平面図

B 2階平面図

B 3階平面図
































































































Page Top