2010.3.1 埼玉県草加市
TOYOI 6
周囲は戸建てが建ち並ぶ住宅地で、屋根の連なりが、なだらかな地形のように広がっていた。
木造アパートから6戸の集合住宅への建替え計画であるが、この場所で集合住宅の計画を考えたとき、そのボリュームは周囲と比較して大きく感じられた。そこで全体を大きく3つのボリュームに分け、それぞれをひとつの住宅として考え、3つの住宅が寄り添うようにして、建物を配置した。周囲の風景と内部空間との関わりを考え、軒の高さを抑えながら屋根の方向と勾配を調整している。
住戸ごとの方位による格差をなくすため、屋根には切り込みを入れて光を取り入れ、空に向けた視界を確保した。
共用部の壁は塗り壁材にわらを混ぜて土壁のように仕上げ、床は縄をたたいて土間に模様を付けた。開口部を絞り、明るく開放的な住戸とは対照的に、薄暗い空間になっている。
接道する南面には、住民同士、または周囲の人びとが交流できるささやかな広場を設け、季節を感じる樹木とベンチを設えた。
エントランスを抜けると、北側の住戸に光を導く中庭があり、敷地東側の路地に視覚的な広がりをもたらし、周辺環境との接点をつくりだしている。
閉鎖的になりがちな集合住宅であるが、通りかかる人が気軽に立ち寄れるような、自己完結しない、緩やかに街と繋がる建築を目指した。
この記事にコメントする
木造アパートから6戸の集合住宅への建替え計画であるが、この場所で集合住宅の計画を考えたとき、そのボリュームは周囲と比較して大きく感じられた。そこで全体を大きく3つのボリュームに分け、それぞれをひとつの住宅として考え、3つの住宅が寄り添うようにして、建物を配置した。周囲の風景と内部空間との関わりを考え、軒の高さを抑えながら屋根の方向と勾配を調整している。
住戸ごとの方位による格差をなくすため、屋根には切り込みを入れて光を取り入れ、空に向けた視界を確保した。
共用部の壁は塗り壁材にわらを混ぜて土壁のように仕上げ、床は縄をたたいて土間に模様を付けた。開口部を絞り、明るく開放的な住戸とは対照的に、薄暗い空間になっている。
接道する南面には、住民同士、または周囲の人びとが交流できるささやかな広場を設け、季節を感じる樹木とベンチを設えた。
エントランスを抜けると、北側の住戸に光を導く中庭があり、敷地東側の路地に視覚的な広がりをもたらし、周辺環境との接点をつくりだしている。
閉鎖的になりがちな集合住宅であるが、通りかかる人が気軽に立ち寄れるような、自己完結しない、緩やかに街と繋がる建築を目指した。
この記事にコメントする
設計・監理
川辺直哉建築設計事務所 担当/辻昌志
構造設計
多田脩二構造設計事務所
用途
共同住宅(6戸)
敷地面積
232.68㎡
建築面積
139.4㎡
延床面積
266.3㎡
構造
木造
規模
地上2階
工期
2009.06〜2010.03
施工
吉川の鯰
受賞
Good Design Award 2010

屋根の間にある屋上テラス

周囲の屋根型と馴染む屋根形状

中庭と路地ガつながる

北側住戸のロフト

ロフトから見た縦に広い内部空間

ロフトに続く梯子と玄関の見通し

中庭を介してアプローチするオーナー住戸

中庭に面した和室

北側の部屋にも南側の光が入る

共用廊下と階段

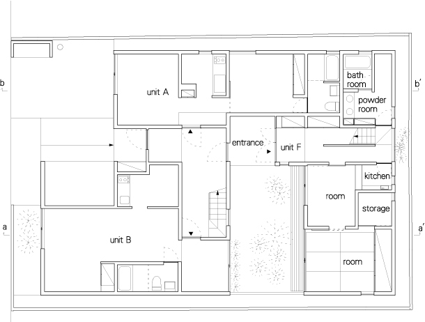
1階平面図

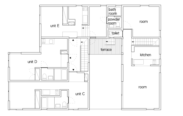
2階平面図

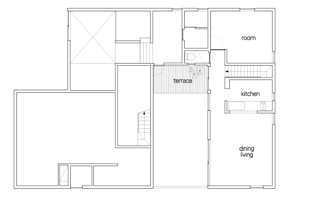
2階ロフト平面図

a-a

b-b
































































































Page Top