2010.12.1 東京都新宿区
丘テラス神楽坂
敷地は見晴らしの良い丘にあり、北側の接続道路には低層の住宅が建ち並ぶ、落ち着いた住宅街である。建物は、北側の建物高さを低く抑えながら、見晴らしの良い南側にいくにつれて、徐々に住戸を積み上げたような構成になっている。南北に長い敷地形状をしているため、住戸へのアプローチを中央に設け、それぞれの住戸が3面以上外部と接することができるような平面計画としている。
外部との接点になる開口部には、適度に囲われたテラスを設け、縁側のように直射光を遮りながら、柔らかな光を室内に運んでいる。風は南北に通り抜け、空調だけに頼らず、四季の変化を生活に取り込むことができる
この記事にコメントする
外部との接点になる開口部には、適度に囲われたテラスを設け、縁側のように直射光を遮りながら、柔らかな光を室内に運んでいる。風は南北に通り抜け、空調だけに頼らず、四季の変化を生活に取り込むことができる
この記事にコメントする
設計・監理
川辺直哉建築設計事務所 担当/辻昌志
構造設計
多田脩二構造設計事務所
用途
共同住宅(17戸)
敷地面積
596.4㎡
建築面積
254.65㎡
延床面積
1255㎡
構造
鉄筋コンクリート
規模
地上6階、地下1階
工期
2009.12〜2010.12
施工
清水建設
受賞
Good Design Award 2011

外観夕景

素材感のある仕上げのエントランス

北側の街並みになじむ4層分のヴォリューム

共有廊下と住戸を見通す

広いテラスと繋がる1階住戸

光が差し込むリビング

半透明の建具によって透過する光

建具を引き込むことで一室空間となる

遠望まで視線の抜けるルーフテラス

トップライトにより採光を得る地下住戸

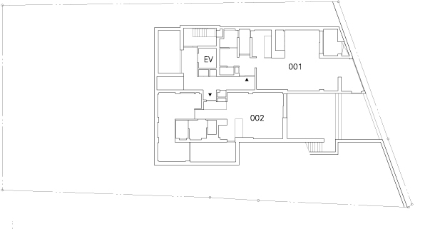
地下1階平面図

1階平面図

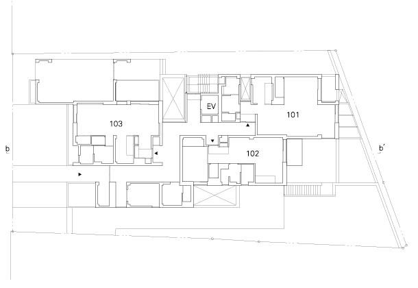
2、3階平面図

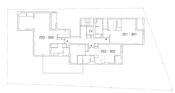
4階平面図

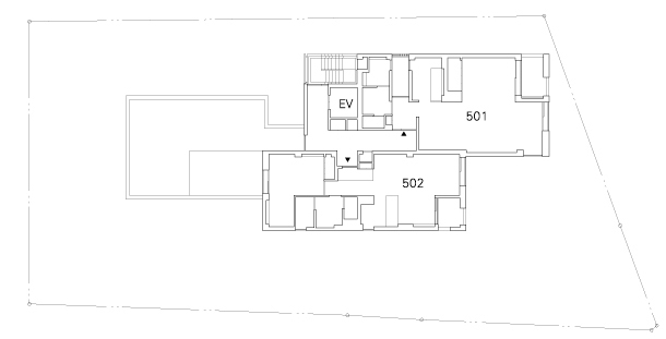
5階平面図

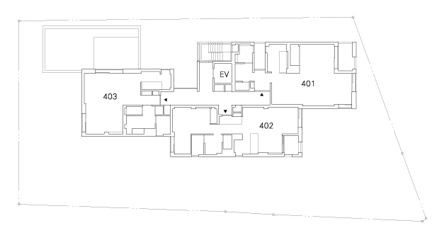
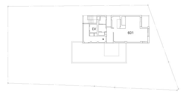
6階平面図

断面図

関連Topics





























































































Page Top