2010.2.15 東京都世田谷区
上野毛ハウス
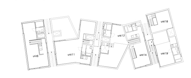
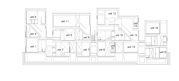
上野毛は住宅街が広がる世田谷区の環状八号線沿いに位置し、道路沿いには沿道計画により中層のビルが並び、すぐ後ろに戸建ての住宅が広がる。敷地はその幹線道路と住宅街の間に位置しており、そこで19戸の集合住宅を計画した。
敷地の西側にある環八沿いの中層ビルのスケールから、東側に並ぶ戸建て住宅へ、段階的にボリュームを変化させている。軒の高さは徐々に落としていき、角度を得た立面によって、フラットルーフの軒は勾配屋根の連なりにも似たラインを描いている。
接道範囲が限られていたため、建物を敷地境界から離して配置し、その周囲を住戸へのアプローチとした。南北を繋ぐ通路や切り通しのような階段によって、全体は、高さと大きさの異なる4つのボリュームに分節され、周辺建物とのスケールを調整しながら、適度な距離をつくり出している。建築の周りには、周囲の雑多な空地を受け止めながら、自立的で流動性のある領域が生まれた。
斜めに振れながら表情をつくる外観は、幹線道路の強い都市軸に正対するのではなく、生活感のある住宅街へ、緩やかに繋がる柔らかさを表現しているのではないだろうか。
この記事にコメントする
敷地の西側にある環八沿いの中層ビルのスケールから、東側に並ぶ戸建て住宅へ、段階的にボリュームを変化させている。軒の高さは徐々に落としていき、角度を得た立面によって、フラットルーフの軒は勾配屋根の連なりにも似たラインを描いている。
接道範囲が限られていたため、建物を敷地境界から離して配置し、その周囲を住戸へのアプローチとした。南北を繋ぐ通路や切り通しのような階段によって、全体は、高さと大きさの異なる4つのボリュームに分節され、周辺建物とのスケールを調整しながら、適度な距離をつくり出している。建築の周りには、周囲の雑多な空地を受け止めながら、自立的で流動性のある領域が生まれた。
斜めに振れながら表情をつくる外観は、幹線道路の強い都市軸に正対するのではなく、生活感のある住宅街へ、緩やかに繋がる柔らかさを表現しているのではないだろうか。
この記事にコメントする
設計・監理
川辺直哉建築設計事務所 担当/辻昌志 田岡博之
構造設計
吉田一成構造設計室
用途
長屋(19戸)
敷地面積
532.65㎡
建築面積
288.33㎡
延床面積
734.11㎡
構造
鉄筋コンクリート
規模
地上3階、地下1階
工期
2009.04〜2010.02
施工
佐藤秀
受賞
Good Design Award 2010
第31回 INAXデザインコンテスト銀賞
第31回 INAXデザインコンテスト銀賞

南側外観とアプローチ通路

建物間を抜ける通路と外壁面が重なる立面

上階住戸への専用階段

上部の開口から光が落ちる

外部とつながる土間空間

3方に水回りのある住戸プラン

床レベルと天井高さの違う室が繋がる住戸

地面から繋がる玄関土間と一段下りた居室

南側へと通路と階段が抜ける北側立面

両隣の建物の高さを読み取った高さ関係

1階平面図

2階平面図

3階平面図

断面図













関連Topics






























































































Page Top