2010.2.15 東京都 世田谷区
2010年2月に上野毛ハウスは竣工しました。
敷地は上野毛駅から歩いて5分ほどの場所で環八沿いの比較的大きな建築と住宅地をまたぐような位置にあります。 この記事にコメントする
敷地は上野毛駅から歩いて5分ほどの場所で環八沿いの比較的大きな建築と住宅地をまたぐような位置にあります。 この記事にコメントする

オーナーは個人の方で、元々この土地に住まわれていました。ご親族は現在もこの敷地内にお住まいで一緒にこの土地を所有しています。そのため今回の計画と既存建物との両方を法規的に、また住環境面で成立させるために、接道している道路と、敷地を区画整理する開発申請を行いました。開発申請自体を設計事務所で行うことは、それにかかる作業や時間には大きな負担がありますが、一貫して行うことで計画する建物と既存の環境を壊さない最適解を求めることができました。

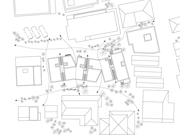
これまでの設計実績と周辺の家賃相場から収支計算を行いおおよその必要な住戸数、面積を導き出し、単純なヴォリュームとして敷地にはめ込みました。周囲を空けるように配置した状態は各戸へのアプローチとして有効ですが、一棟の状態を保ちながら変形させていくなかで空地の残り方に変化が現れず、通路の域を超えない場所が周囲をめぐるだけで、場の差異や動きをつくるきっかけに繋がりませんでした。

そこで南北から1箇所づつ「くさび」を打ち込み、周囲の建物に近似したスケールで割けた3つのヴォリュームを形成しました。この段階ではじめて、建物の操作によって周囲の環境に変化が現れはじめました。

さらに各々のヴォリュームの中央をオーバーハングするようなクレバス(割れ目)をつくり、そこへ外部階段を設けることで建物の一体性と動線の選択肢、周囲に対するヌケをつくることができました。住戸のアプローチにもバリエーションがつくりやすくなり、敷地全体をつなぐような行き止まりのない共用部ができました。

ここまでの操作で住戸の大枠の区画は完了しました。併せて、設備計画や窓の計画を行い、集合住宅として成立させています。
複数の住戸を良い環境で成立させる事と、外形や建ち方を同時に考えた結果、住戸間で共有する壁も少なくなり、「独立性の高い長屋形式」と「流動的な外部空間」を提案出来ました。
集合住宅はそのスケールから周囲の環境に与える影響がとても大きなものになります。周辺の住民の方から計画に対して反対を受けることも往々にして起こりえます。今回のケースでは敷地形状から道路整備、収支の計算、ご説明してきた建築計画、植栽計画、管理会社の選定に至るまでトータルにサポートすることで、周囲にも入居者にも良い環境作りができたと考えています。
複数の住戸を良い環境で成立させる事と、外形や建ち方を同時に考えた結果、住戸間で共有する壁も少なくなり、「独立性の高い長屋形式」と「流動的な外部空間」を提案出来ました。
集合住宅はそのスケールから周囲の環境に与える影響がとても大きなものになります。周辺の住民の方から計画に対して反対を受けることも往々にして起こりえます。今回のケースでは敷地形状から道路整備、収支の計算、ご説明してきた建築計画、植栽計画、管理会社の選定に至るまでトータルにサポートすることで、周囲にも入居者にも良い環境作りができたと考えています。































































































































































































Page Top