2019.1.17 東京都世田谷区
HANEGI TERRACE
「風景としての片廊下」
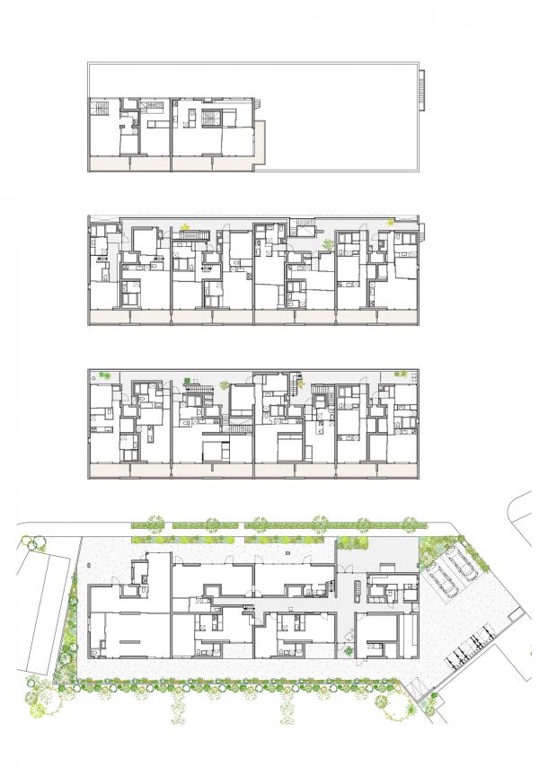
計画地の周囲は広めの宅地が多く、南側隣地は公 共施設の緑が広がり、北側は道路に面していて、東西に長い敷地形状をしている。この場所のポテンシャルを最大限活かしながら、事業として住戸面 積を最大化する必要があった。本計画では敷地形状を活かすため片廊下をベースとしながら、改めて片廊下形式を再考できないかと考えた。集合住宅では片廊下形式が採用されることが多い。それは規格化された住戸を合理的に配置できる最も単純な形式だからだろう。規模が大きくなれば更に、階段や住戸数の調整の中で片廊下形式が採用されることが多くなるが、その形式自体が積極的 に計画に活かされていることは少ない。集合住宅の共用部はある程度限られた人が利用する場所である中で、片廊下は視覚的な意味で公共性が高く、風景の一部として積極的に参加できるよう計画する必要があると考えた。
「集合形式のカスタマイズ 」
南側は隣地に視界を遮るものが無いため、あえて 特別な操作は行わずに奥行のある広めのテラスを各住戸共通で配置し、北側は道路に面した片廊下形式を採用することで住戸構成のベースとなる8つの区画を用意した(fig.1)。
住戸面積を想定した2区画を構造の構成単位とすることで、住戸形状が構造要素に拘束されにくくなるためプランに自由度を与えることができ、同様に 設備スペースを建物中央付近に引き込み、廊下面 にPSや各種メーターが並ぶのを避けることができた。その結果,片廊下形式に拘束されることなく、 2 区画ごとの面積の割り振りと廊下に面する形状の変化によって、さまざまな住戸バリエーションが生まれている(fig.2,fig.3)。
エントランスはオートロックを無くし、エレベータも 省かれているため、 共用部は動線としても連続的に街路に接続されている。建物の中でありながら も街の一部のような印象が生まれ、開放することで見守られる関係にしたいと考えた。 各住戸は南側のテラスを介して明るい光が射し込み、片廊下は単なる廊下としてではなく、ゆとりのある奥行きに動線の滞留が生まれ、凹凸を利用し た住戸アクセスは専有感を演出している。高めの天井高や階段の吹き抜けは、開放的な路地空間のようなスケールでもある。共用部に現れる日常生活のささやかなシーンは通りからも垣間見え、視覚的にも開かれた街の風景をつくり出している。慣習的に用いられてきた集合形式を採用しながら も、建築条件や環境に応じてカスタマイズすることで、集合住宅に求められる住戸の多様性と環境への接続という命題に対する、形式の持つ可能性がまだ残されているような気がしている。
※新建築2018年2月号集合住宅特集より この記事にコメントする
計画地の周囲は広めの宅地が多く、南側隣地は公 共施設の緑が広がり、北側は道路に面していて、東西に長い敷地形状をしている。この場所のポテンシャルを最大限活かしながら、事業として住戸面 積を最大化する必要があった。本計画では敷地形状を活かすため片廊下をベースとしながら、改めて片廊下形式を再考できないかと考えた。集合住宅では片廊下形式が採用されることが多い。それは規格化された住戸を合理的に配置できる最も単純な形式だからだろう。規模が大きくなれば更に、階段や住戸数の調整の中で片廊下形式が採用されることが多くなるが、その形式自体が積極的 に計画に活かされていることは少ない。集合住宅の共用部はある程度限られた人が利用する場所である中で、片廊下は視覚的な意味で公共性が高く、風景の一部として積極的に参加できるよう計画する必要があると考えた。
「集合形式のカスタマイズ 」
南側は隣地に視界を遮るものが無いため、あえて 特別な操作は行わずに奥行のある広めのテラスを各住戸共通で配置し、北側は道路に面した片廊下形式を採用することで住戸構成のベースとなる8つの区画を用意した(fig.1)。
住戸面積を想定した2区画を構造の構成単位とすることで、住戸形状が構造要素に拘束されにくくなるためプランに自由度を与えることができ、同様に 設備スペースを建物中央付近に引き込み、廊下面 にPSや各種メーターが並ぶのを避けることができた。その結果,片廊下形式に拘束されることなく、 2 区画ごとの面積の割り振りと廊下に面する形状の変化によって、さまざまな住戸バリエーションが生まれている(fig.2,fig.3)。
エントランスはオートロックを無くし、エレベータも 省かれているため、 共用部は動線としても連続的に街路に接続されている。建物の中でありながら も街の一部のような印象が生まれ、開放することで見守られる関係にしたいと考えた。 各住戸は南側のテラスを介して明るい光が射し込み、片廊下は単なる廊下としてではなく、ゆとりのある奥行きに動線の滞留が生まれ、凹凸を利用し た住戸アクセスは専有感を演出している。高めの天井高や階段の吹き抜けは、開放的な路地空間のようなスケールでもある。共用部に現れる日常生活のささやかなシーンは通りからも垣間見え、視覚的にも開かれた街の風景をつくり出している。慣習的に用いられてきた集合形式を採用しながら も、建築条件や環境に応じてカスタマイズすることで、集合住宅に求められる住戸の多様性と環境への接続という命題に対する、形式の持つ可能性がまだ残されているような気がしている。
※新建築2018年2月号集合住宅特集より この記事にコメントする
設計・監理
川辺直哉建築設計事務所 担当/占部将吾 李圭範
構造設計
多田脩二構造設計事務所
用途
共同住宅(21戸)
敷地面積
999.46㎡
建築面積
565.76㎡
延床面積
1483.36㎡
構造
鉄筋コンクリート
工期
2016年11月-2017年12月
施工
佐藤秀
植栽計画
タカ・グリーン・フィールズ
プロデュース
リネア建築企画











ダイアグラム fig1.片廊下形式 fig2.構造形式と設備スペースを2住戸単位で構成 fig3. 南北の抜けを活かした住戸プラン

北側立面図

平面図

南北断面図
関連Topics


























































































































































































Page Top