2012.4.29 東京都港区
LUZ白金
共用部にある居場所
周囲には町工場や住宅が密集するように建つ、5階建て13戸の集合住宅である。敷地がほとんど建物で囲まれている状況では、住環境を周辺に頼るだけでなく、つくり出していく必要があると考えた。
ここではその役割を共用部が担っている。採光・通風・視界といった、通常は外部へと求める要素を建築の内側に取り込み、各住戸で共有している。共用部は階段や吹き抜けを介して地面から屋上まで続く、積層した住戸のようでもあり、道路や隣の空地、隣家の屋根の上といった抜けを選びながら、階数と方位に応じて周辺と関係付けられている。風は上下階を通じて抜けていき、一日を通して様々な方向から陽の光が入る。外観は住戸と共用部の区別のない開口で構成され、周囲に対して背を向けない立面をつくっている。
各階の共用部は通常の廊下よりも少し幅を拡げ、住戸と同じようなスケールとすることで、各住戸に付属したインテリアのような場所になっている。部屋の窓の向こうが、もうひとつの居場所として連続感のある奥行きをつくるように、共用部は住戸と同じインテリアとして細部まで考えた。既製品のアルミサッシは、雨仕舞いの理由から外部のような見え方をしてしまう為、木製の枠を壁面と同面で四方に回し、アルミサッシとしてのディテールを消している。また、通常のドアホンは共用廊下のような場の印象を与えてしまうので、室内のスイッチと同じ仕様のプレートを用いている。そのようにしてできたインテリアには、場所の特性や使い方に応じて、専用にデザインされたテーブルやベンチ、シェルフを置いている。
住み手によって本や植栽が置かれ、日常生活の中で使われていくことで時間が積み重ねられていく。建て替えなどにより周辺環境が変化をしても、共用部がその役割を超えて、入居者同士だけでなく、人と人、人と環境をつないでいくことを願っている。
この記事にコメントする
周囲には町工場や住宅が密集するように建つ、5階建て13戸の集合住宅である。敷地がほとんど建物で囲まれている状況では、住環境を周辺に頼るだけでなく、つくり出していく必要があると考えた。
ここではその役割を共用部が担っている。採光・通風・視界といった、通常は外部へと求める要素を建築の内側に取り込み、各住戸で共有している。共用部は階段や吹き抜けを介して地面から屋上まで続く、積層した住戸のようでもあり、道路や隣の空地、隣家の屋根の上といった抜けを選びながら、階数と方位に応じて周辺と関係付けられている。風は上下階を通じて抜けていき、一日を通して様々な方向から陽の光が入る。外観は住戸と共用部の区別のない開口で構成され、周囲に対して背を向けない立面をつくっている。
各階の共用部は通常の廊下よりも少し幅を拡げ、住戸と同じようなスケールとすることで、各住戸に付属したインテリアのような場所になっている。部屋の窓の向こうが、もうひとつの居場所として連続感のある奥行きをつくるように、共用部は住戸と同じインテリアとして細部まで考えた。既製品のアルミサッシは、雨仕舞いの理由から外部のような見え方をしてしまう為、木製の枠を壁面と同面で四方に回し、アルミサッシとしてのディテールを消している。また、通常のドアホンは共用廊下のような場の印象を与えてしまうので、室内のスイッチと同じ仕様のプレートを用いている。そのようにしてできたインテリアには、場所の特性や使い方に応じて、専用にデザインされたテーブルやベンチ、シェルフを置いている。
住み手によって本や植栽が置かれ、日常生活の中で使われていくことで時間が積み重ねられていく。建て替えなどにより周辺環境が変化をしても、共用部がその役割を超えて、入居者同士だけでなく、人と人、人と環境をつないでいくことを願っている。
この記事にコメントする
設計・監理
川辺直哉建築設計事務所 担当/田岡博之
構造設計
多田脩二構造設計事務所
用途
共同住宅(13戸)
敷地面積
187.82㎡
建築面積
107.53㎡
延床面積
499.76㎡
構造
鉄筋コンクリート
規模
地上5階
工期
2010.07〜2011.03
施工
佐藤秀
植栽計画
タカ・グリーン・フィールズ
受賞
住宅建築賞2012「住宅建築賞」

道路側ファサード 共用部の開口も住戸内と同様に扱う

共用玄関と2階へのアプローチ

2階共用部 上階へ緩やかにつながる

3階共用部 外壁と同じように共用部へ開いている

4階共用部 インテリアのように扱う共用部

5階共用部 ベンチが置かれみんなで使えるスペース 住戸と同じ開口の印象

共用部へも光の通るインテリア

1階南側インテリアと水回り

1階道路に面する住戸 庭を通ってアプローチする

塔屋から屋上へ 周囲の見渡せる屋上階

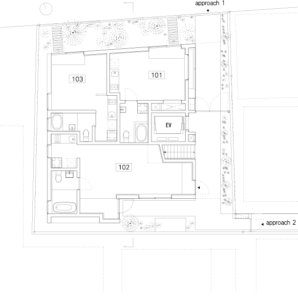
1階平面図

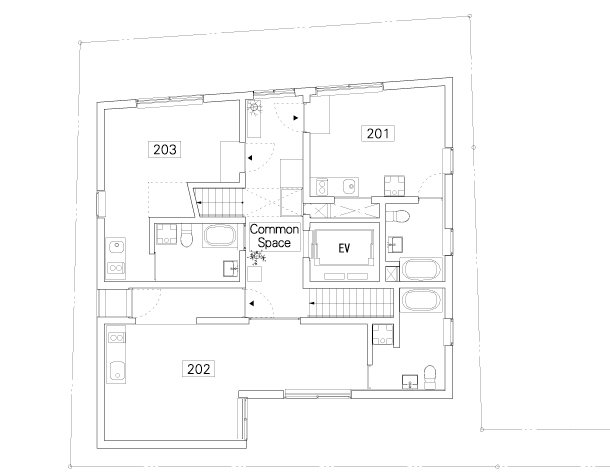
2階平面図

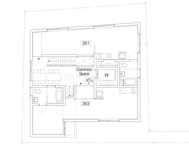
3階平面図

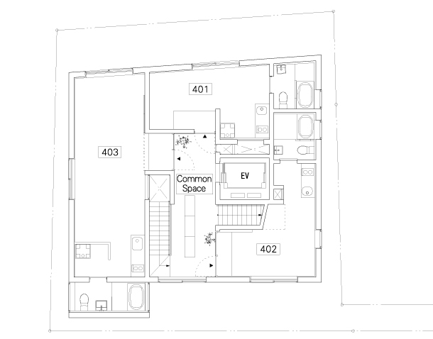
4階平面図

5階平面図

断面図
新建築社制作







関連Topics
































































































































































































Page Top